| Číslo zakázky: | 142/5000 | ![]() Karta nemovitosti |
|---|---|---|
| Typ zakázky: | prodej |
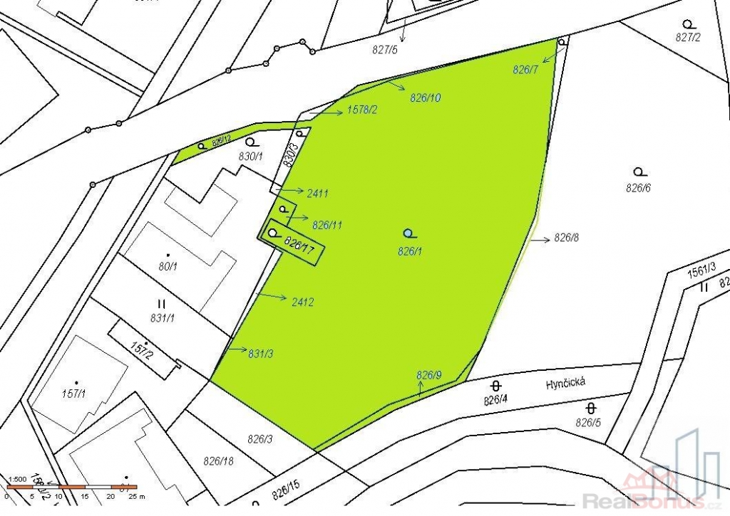
Nabízím ke koupi pozemky, o celkové výměře 3.222 m2, je určen k výstavbě rodinných domů, v obci Hanušovice, okres Šumperk. Vhodné k výstavbě tří až čtyř rodinných domů, pozemek možno rozdělit. Nachází se v ulici na konci obytné zástavby směrem na Jeseník.
V dosahu veškeré inženýrské sítě. Pozemek je umístěn na pěkném a dobře dostupném místě částečně kolem železniční trati. V územním plánu chváleno k zástavbě jako plocha smíšená venkovská, je v blízkosti řeky Branné, avšak mimo záplavovou zónu. Vhodné pro investora, na rozdělení jednotlivých parcel, nebo pro ty, kteří chtějí hospodářství, které je možno rozšířit o další plochu ve vlastnictví obce a není ji možno využít stavebně. Vhodný je také pro ty, kteří nechtějí mít spoustu sousedů. Výborná dopravní dostupnost a v samotné obci je umístěna veškerá občanská vybavenost. Ve vzdálenosti do 20 km jsou turistická střediska Kouty, Ramzová, Dolní Morava Paprsek, Kunčice, Stříbrnice a v neposlední řadě Lázně Velké Losiny, vyhlášené termální lázně.
| Cena: | (za nemovitost) 2 849 000,- Kč |
|---|
| Číslo podlaží v domě | 1 |
|---|---|
| Vlastní pozemek | 3 222 m² |
| Umístění objektu | okrajová zástavba |
| Celková plocha | 3 222 m² |
| Plocha parcely | 3 222 m² |
| Druh pozemku | pro bydlení |




