| Číslo zakázky: | 00904 | ![]() Karta nemovitosti |
|---|---|---|
| Typ zakázky: | prodej |
Nabízíme k prodeji moderní rodinný dům na klíč 4+kk, o užitné ploše 194 m2, který bude realizován na slunném pozemku o výměře 1 000 m2, v klidné části obce Podbořany s krásným výhledem do zeleně. Projekt je připravován ve vysokém standardu přímo vlastníkem pozemku, s důrazem na kvalitu použitých materiálů, energetickou úspornost a komfortní bydlení. Schválení stavebního povolení očekáváme začátkem roku 2026.
Výstavba a cena:
Cena zahrnuje pozemek a realizaci hrubé stavby (základy, nosné konstrukce, střecha, zateplení, dveře, schodiště). Za příplatek je možné dokončit dům přesně dle vizualizace a požadavků kupujícího. Na prodej je také sousední pozemek včetně realizace o stejné výměře 1 000 m2 (viz koordinační výkres). Je také možné koupit pozemek ihned s hotovým projektem a stavebním povolením za 2.49 mln. s možností samostatné realizace.
Financování stavby je možné rozdělit na jednotlivé etapy, takže celou částku nemusíte platit najednou.
Zastavěná plocha: 178,57 m2.
Podlahová plocha: 194,25 m2.
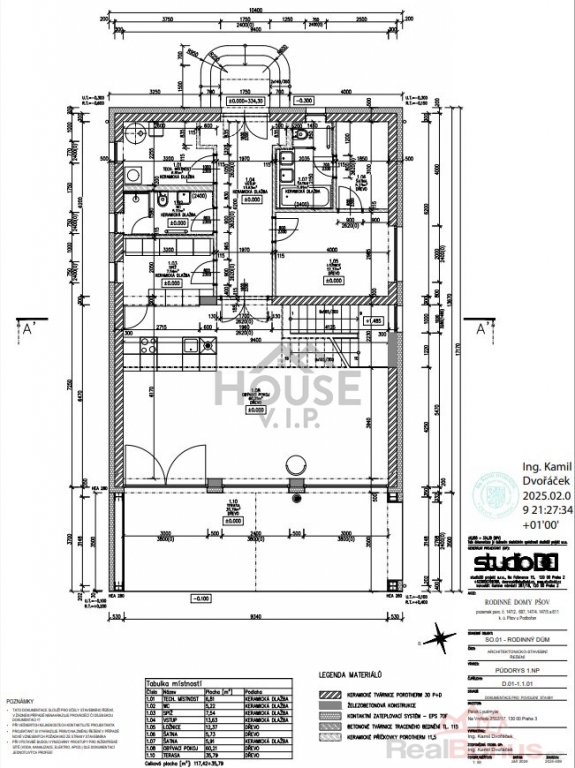
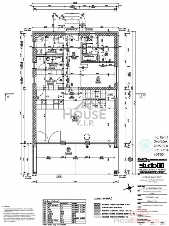
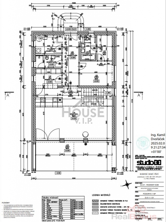
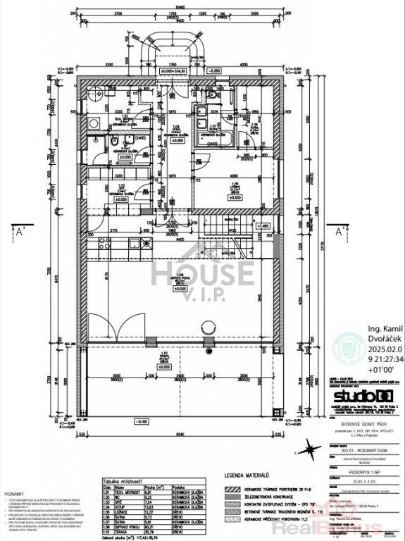
?? 1. NP: 117,42 m2 + terasa 35,79 m2.
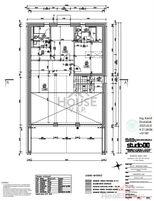
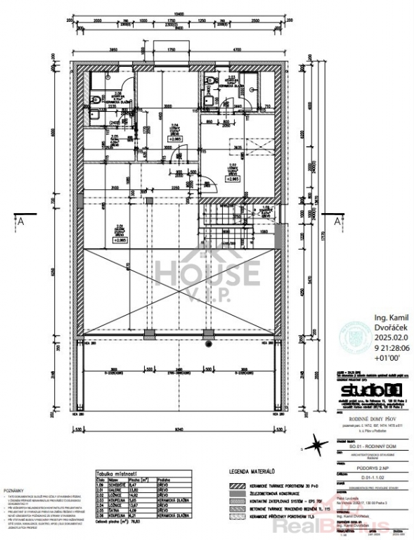
?? 2. NP: 76,83 m2.
Výška stavby: 8,86 m.
Konstrukce: nosné stěny z dutinových keramických tvárnic.
Strop nad 1. NP: železobetonový monolit (tl. 250 mm).
Vytápění: tepelné čerpadlo + krbová vložka.
Další technologie: fotovoltaika, klimatické zatížení řešeno v projektu.
Přípojka vody: ze stávající studny.
Kanalizace: domovní ČOV.
Dispozice 1. NP (117,42 m2):
Technická místnost (6,81 m2), WC (5,22 m2), spíž (7,54 m2), vstupní hala (13,63 m2), ložnice (12,37 m2), šatna (5,73 m2), druhá šatna (5,91 m2), obývací pokoj s kuchyňským koutem (60,21 m2) a terasa (35,79 m2).
Dispozice 2. NP (76,83 m2):
Schodiště (8,47 m2), galerie (23,82 m2), ložnice (14,92 m2), koupelna (5,65 m2), druhá ložnice (13,67 m2), šatna (4,09 m2) a koupelna (6,21 m2).
Lokalita:
Nemovitost se nachází v tiché části obce, pouhých 350 m od autobusové zastávky směr Žatec. Podbořany nabízejí plnou občanskou vybavenost, dobrou dostupnost do větších měst a krásné okolí ideální pro rodinné bydlení.
Energetická náročnost:
Budoucí PENB bude odpovídat hodnotám nízkoenergetického až pasivního domu třídy "A", což zaručuje nízké provozní náklady.
Pro více informací o rodinném domě a možnostech individuálních úprav nás kontaktujte.
| Cena: |
(za nemovitost) 6 990 000,- Kč
(včetně DPH, včetně provize, včetně právního servisu)
|
|---|
| Počet podlaží objektu | 2 |
|---|---|
| Druh objektu | cihlová |
| Stav objektu | projekt |
| Energetická třída | A - Mimořádně úsporná |
| Odpad | ČOV pro celý objekt |
| Zastavěná plocha | 179 m² |
| Plocha parcely | 1 001 m² |
| Užitná plocha | 195 m² |
| Poloha objektu | samostatný |




