| Číslo zakázky: | 954256 | ![]() Karta nemovitosti |
|---|---|---|
| Typ zakázky: | pronájem |
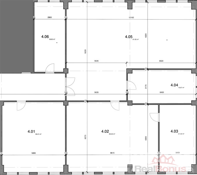
Nabízíme k pronájmu flexibilní komerční prostory v Modřanské ulici, Praha 4.
Výhody:
Možnost úpravy dispozice příčky nejsou nosné, prostor lze přizpůsobit vlastním potřebám
Majitel zajistí malování, výměnu koberců a žaluzií (kanceláře jsou nyní v původním stavu)
Klimatizované prostory
Bezpečnost: objekt hlídaný kamerovým systémem, 24/7 přístup pomocí elektronických čipů, každé patro má vlastní čip
Společné toalety a kuchyňka na každém patře
Možnost připojení optiky (Quantcom), TMobile a O2
Klidné prostředí vhodné pro práci i kreativní činnosti
Výborná dopravní dostupnost MHD (autobus, tramvaj) i autem, v okolí občanská vybavenost pro zaměstnance
Využití prostor:
Kanceláře a administrativní prostory
Coworking nebo sdílené pracovní prostory
Meetingy, školení, workshopy
Podcasty, nahrávání nebo video produkce
Kreativní/marketingové týmy
Konzultace, poradenství, menší agentury
Nájemné: 210 Kč/m + 100 Kč/m služby + elektřina
Elektřina: rozpočítává se na m2, účtuje se měsíčně
Parkování: 1 místo zdarma za každých 50 m pronajaté plochy; další místa lze dokoupit (kryté 700 Kč/měs., nekryté 500 Kč/měs.)
Dostupnost: Ihned k nastěhování
| Cena: |
(za měsíc) 76 570,- Kč
(+ elektřina)
|
|---|
| Číslo podlaží v domě | 5 |
|---|---|
| Počet podlaží objektu | 6 |
| Druh objektu | cihlová |
| Stav objektu | velmi dobrý |
| Energetická třída | G - Mimořádně nehospodárná |
| Počet podlaží pod zemí | 1 |
| Vybaveno | Nezařízeno |
| Odpad | Městská kanalizace |
| Zastavěná plocha | 701 m² |
| Užitná plocha | 246 m² |
| Nebytové prostory | 246 m² |
| Druh prostor | Kanceláře |
