| Číslo zakázky: | ZR1195 | ![]() Karta nemovitosti |
|---|---|---|
| Typ zakázky: | prodej |
Exkluzivně nabízíme k prodeji prostorný řadový rodinný dům nacházející se v rezidenčním bytovém komplexu na severovýchodním okraji Prahy 9-Kbely, v ulici Pod Nouzovem. Dům se nachází v jižní části komplexu a plynule navazuje na okolní zahrady a výstavbu.
Základní údaje:
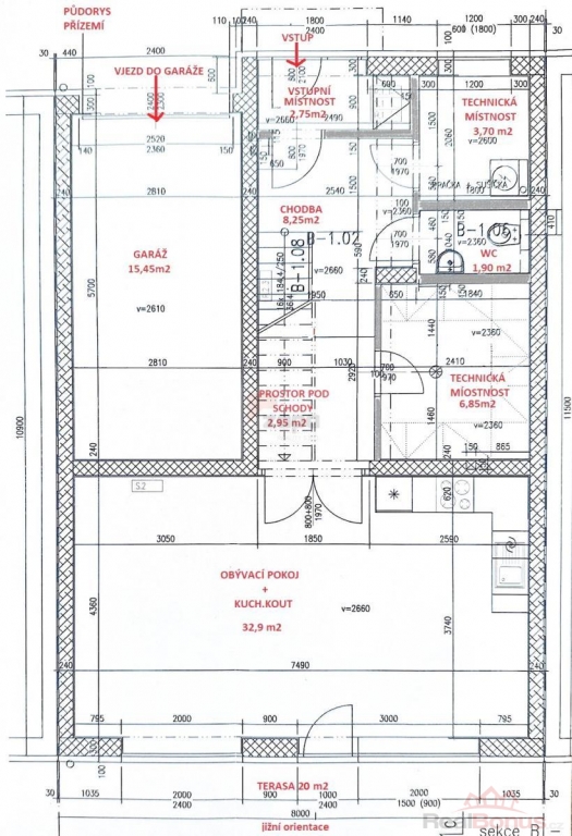
5+kk+ garáž- celkem 147 m2
Průkaz energetické náročnosti je třída B
2x terasa -20m2 s hliníkovou konstrukcí Solarlux a stínící markýzou + 9m2 bez zastřešení
půda 50m2-sloužící jako úložný prostor nebo možnost vestavby 2 pokojů
garáž 16 m2 + 2x parkovací stání na pozemku 52m2
zahrada 95 m2- vzrostlá zeleň, klid a soukromí, jižní orientace
ze severní i jižní strany vyvedena voda pro zalévání zahrady
je světlý (severojižní orientace), velmi prostorný, ideální pro 4-5ti člennou rodinu.
Dispozice domu:
- Přízemí 75 m2- obývací pokoj s kuch. koutem se vstupem na terasu a zahradu, 1xskladovací místnost 7 m2, 1x technická místnost, úložný prostor pod schodištěm, předsíň s vestavěnou skříní, garáž se samostatným vjezdem, bezbarierový přístup
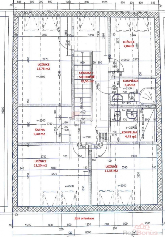
- 1.patro 72 m2- 4x samostatná ložnice, 1x šatna, 2x koupelna (vana, sprchový kout), 2x WC , vstup na půdu
- Půda: sloužící jako úložný prostor, možnost půdní vestavby 1-2 pokoje
Vybavení: kuch. linka s velkou spíží, vestavěnné spotřebiče (lednice, myčka, el. varná deska, digestoř, el. trouba a mikrovlnná trouba), centrální vysavač, optický kabel ve všech místnostech, zaabezpečovací systém, domácí telefon, biokrb, ve všech oknech bezpečnostní skla a stínící žaluzie, dálkové ovládání garážových a vjezdových vrat, zásuvka 400V v garáži
Podlaha: plovoucí-imitace dřeva nebo dlažba, na nezastřešené terase Bangkirai
Vytápění: zdrojem tepla je vlastní výměníková stanice CZT s vlastní regulací (lze ovládat teplotu topení a TUV v domě), v případě odstávky (v létě) lze využít elektrický kotel jako záložní zdroj pro ohřev TUV.
Měsíční poplatky: cca 7.800,-Kč/měs./4os. ( topení cca 4.000,-Kč/měs., elektřina cca 1.800,-Kč a voda 2.000,-Kč).
Dům je ve výborné dostupnosti do centra Prahy: 1 min. chůzí na autobusovou zastávku (na metro Letňany cca 9 min.), autem do centra cca 25 min., 8 min. chůzí je vlaková zastávka Kbely-Masarykovo nádraží (cca 20 min.).
Dům se nachází v příjemném a klidném prostředí s kompletní občanskou vybaveností- základní škola, dvě mateřské školky, dva supermarkety Billa, zdravotní středisko, nová multifunkční sportovní hala s horolezeckou stěnou, restaurace s pivovarem, sushi bar s kavárnou, pošta. Pro volnočasové a sportovní vyžití se nabízí skautská klubovna v centrálním parku, dětská a workoutová hříště, multifunkční hřiště s umělým povrchem pro tenis, basketbal, volejbal, nohejbal apod. hned za domem, místem vede mnoho cyklostezek směrem do centra i mimo Prahu. V pěší dostupnosti je kbelský a letňanský lesopark s několika singletraily, zámek a park ve Ctěnicích a golfový resort Twin Chapels spojující Kbely s městskou částí Praha Vinoř. V blízkých Letňanech je plavecký bazén, sportovní hala, zimní stadion a OC Letňany.
Prohlídky jsou možné po telefonické dohodě, k nastěhování po vzájemné dohodě.
Uvedená cena je včetně provize, daní a právních služeb. Dům lze financovat hypotékou, s vyřízením Vám rádi pomůžeme.
| Cena: |
(za nemovitost) 17 890 000,- Kč
(včetně všech poplatků, právních služeb a daní)
|
|---|
| Číslo podlaží v domě | 1 |
|---|---|
| Počet podlaží objektu | 3 |
| Druh objektu | cihlová |
| Stav objektu | velmi dobrý |
| Energetická třída | B - Velmi úsporná |
| Vlastní pozemek | 225 m² |
| Vybavení | terasa |
| Umístění objektu | klidná část obce |
| Vybaveno | Možno zařídit |
| Topení | Ústřední - dálkové |
| Elektřina | 230 V |
| Zastavěná plocha | 90 m² |
| Plocha parcely | 225 m² |
| Plocha zahrady | 83 m² |
| Inženýrské sítě | Elektřina |
| Druh stavby | rodinný dům, rekreační chalupa, rekreační pozemek |
| Poloha objektu | řadový |
