Pronájem obchodních prostor, Praha 4

Pronájem obchodních prostor, Praha 4

1
23456789101112131415161718192021222324

Nemovitost nabízí:

Ing. Jiří Doskočil
Ing. Jiří Doskočil
Telefon: 774 171 500
Mobil: 774 171 500
doskocil@dumrealit.cz

Kontaktovat makléře

Odeslat
Číslo zakázky: 653280  
Karta
nemovitosti
Typ zakázky: pronájem
Pronájem obchodních prostor, Praha 4

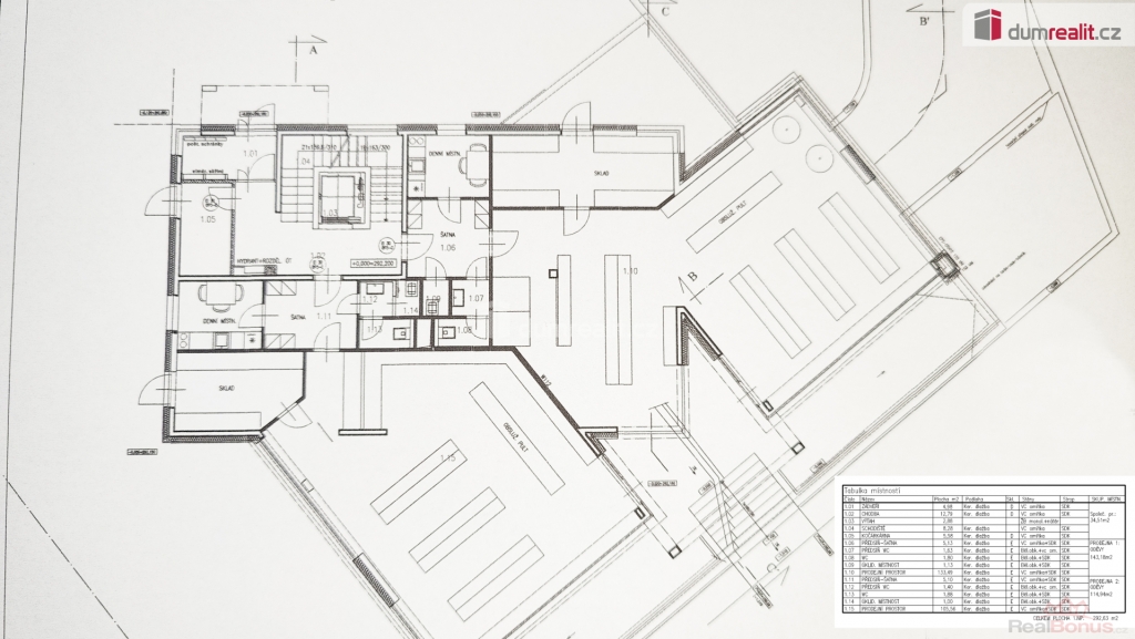
+ služby a elektroměr, Dumrealit.cz Vám zprostředkuje exkluzivně pronájem zcela nového komerčního prostoru o velikosti 114,94 m, v nově stavěné budově (PENB B) přímo u budoucí stanice metra D - Nové Dvory (přes ulici Štúrova), která bude dokončena v druhé polovině roku 2026. Tento prostor se nachází v přízemí třípatrové nízkoenergetické budovy, kde v přízemí je nabízený prostor o velikosti 143,18 m, který bude mít hlavní vstup z ulice Štúrova přímo od zastávky MHD / Bus Tempo, vstup bude přes schodiště a také bude plně bezbariérový. Prostor 114,94 m může být jako obchodní (např. kavárna, prodejna, pekárna) nebo jako kancelář / showroom nebo i ordinace, výběr je plně na klientovi. Prostor lze plně modifikovat, lze ho rozšířit o další prostor nabízený k pronájmu o velikosti 143,18 m s vlastním zázemím a samostatným vstupem. K dispozici bude toaleta, šatna, předsíň a úklidová místnost. K prostoru lze dopronajmout venkovní terasu a menší zahrádku, dále parkovací stání a popř. sklepy. V domě bude 12 parkovací stání v suterénu domu, 6 x sklep a dále lze pronajmout až 3 venkovní parkovací stání. Tato budova bude dokončena a zkolaudována v druhé polovině roku 2026, již nyní mohou probíhat prohlídky a úpravy prostor před dokončením přímo na přání nového nájemce. Velmi doporučuji všem zájemcům, kteří již nyní hledají atraktivní prostor u budoucí stanice metra D Nové Dvory, v ulici Štúrova, Praha 4. Ev. číslo: 652666. Energetický štítek: B (60 kWh/m2/rok).

Cena: (za m2 / měsíc)   360,- Kč
(+ služby a elektroměr)

Informace o nemovitosti

Počet podlaží objektu4
Druh objektuskeletová
Stav objektunovostavba
Energetická třídaB - Velmi úsporná
VybavenoNezařízeno
Počet míst k parkování2
Zastavěná plocha258 m²
Užitná plocha115 m²
Druh prostorObchodní
B - Velmi úsporná

Energetická náročnost:


RealBonus.cz

Používáme cookies!

Tyto stránky používají a ukládají soubory cookies. Některé jsou nezbytné pro jejich správné fungování (tzv. technické cookies). Dále tyto stránky využívají marketingové a analytické cookies pro zkvalitnění našich služeb a přizpůsobení zobrazovaného obsahu. Pro jejich využití je nutný Váš souhlas. Více informací o cookies.