| Číslo zakázky: | 06301 | ![]() Karta nemovitosti |
|---|---|---|
| Typ zakázky: | prodej |
Hledáte klidné bydlení v přírodě, investiční příležitost v turistickém ruchu, nebo rovnou obojí? Pak jste právě našli to pravé místo.
Jen 500 metrů od civilizace, na klidném místě obklopeném přírodou, se nachází rodinný dům s téměř 10 000 m2 pozemku. Dům s pensionem pohodlně ubytuje až šest rodin, které mají k dispozici dvě plně vybavené kuchyně a několik koupelen. Součástí je také prostorný byt 3+kk s terasou, kde současně bydlí samotní majitelé ? ideální pro spojení podnikání s vlastním bydlením.
Pozemek dále nabízí stylovou společenskou boudu s barem, výčepem a kapacitou cca 30 míst k sezení - skvělé místo pro oslavy, svatby nebo třeba dětskou hernu. Díky velkorysému prostoru nechybí ani taneční parket!
- Perfektní poloha pro aktivní život i relax
- 5 minut ke sportovnímu středisku České Petrovice (celoročně v provozu)
- Přímý vstup do přírody ? třeba na pašeráckou stezku kolem pohraničních bunkrů
- 10 minut k přehradě Pastviny (koupání, bobová dráha)
- 30 minut na Dolní Moravu, lyžařského areálu Říčky nebo na nákupy do Polska
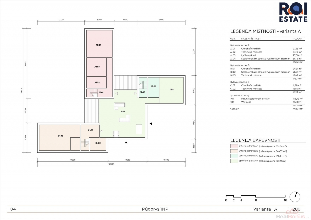
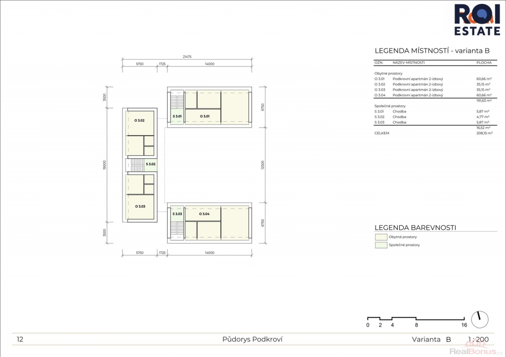
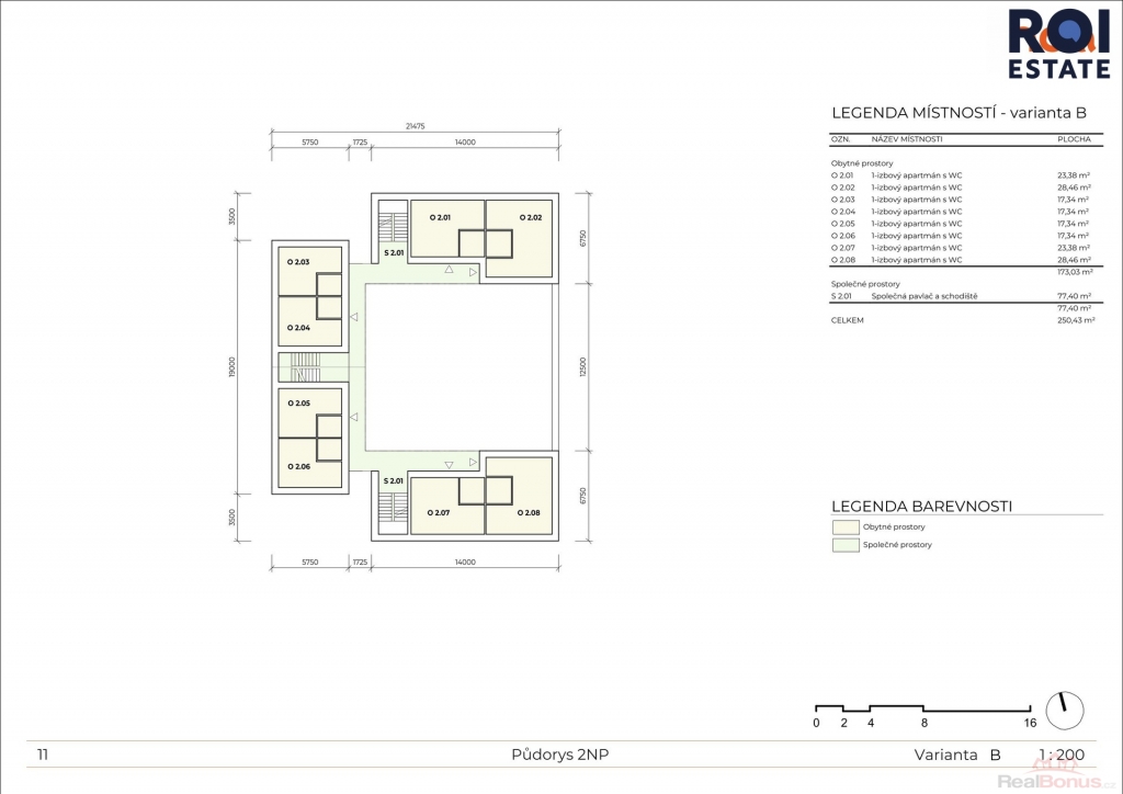
Na pozemku navíc máme vytvořené dvě studie využitelnosti, které jsou projednané na stavebním úřadě i na obci a zobrazují tak skutečnou využitelnost pozemku jak při zachování současné stavby, tak při maximalistické variantě někdy v budoucnu.
Hledáte jedinečné místo s atmosférou a potenciálem? Pozemek i současný dům nabízí skvělou investiční příležitost i kouzelné bydlení v souladu s přírodou. Přijďte se přesvědčit osobně!
| Cena: |
(za nemovitost) 19 990 000,- Kč
(bez poplatků)
|
|---|
| Celková podlahová plocha | 670 m² |
|---|---|
| Druh objektu | smíšená |
| Stav objektu | dobrý |
| Energetická třída | C - Úsporná |
| Vybavení | terasa sklep |
| Umístění objektu | centrum |
| Telekomunikace | Internet |
| Topení | Ústřední - tuhá paliva Ústřední - elektrické |
| Doprava | silnice |
| Celková plocha | 670 m² |
| Plocha parcely | 9 674 m² |
| Ostatní | Parkoviště |
| Užitná plocha | 575 m² |
| Počet bytů - celkem | 3 |
| Charakter okolní zástavby | venkovská |
| Druh stavby | rodinný dům, rekreační chalupa, rekreační pozemek |
| Poloha objektu | samostatný |
