| Číslo zakázky: | 06299 | ![]() Karta nemovitosti |
|---|---|---|
| Typ zakázky: | prodej |
Hledáte investiční příležitost v turistickém ruchu? Pak jste právě našli to pravé místo.
Jen 500 metrů od civilizace, na klidném místě obklopeném přírodou, se nachází pozemek se zpracovanou studií pro výstavbu výjimečného ubytování s pozemkem o rozloze téměř 10 000 m2. V současné době zde již stojí funkční rodinný dům s pensionem, který pohodlně ubytuje až šest rodin, které mají k dispozici dvě plně vybavené kuchyně a několik koupelen. Součástí je také prostorný byt 3+kk s terasou, kde mohou bydlet samotní majitelé ? ideální pro spojení podnikání s vlastním bydlením.
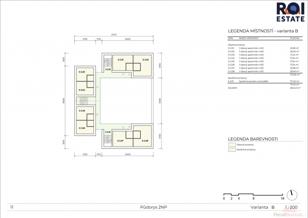
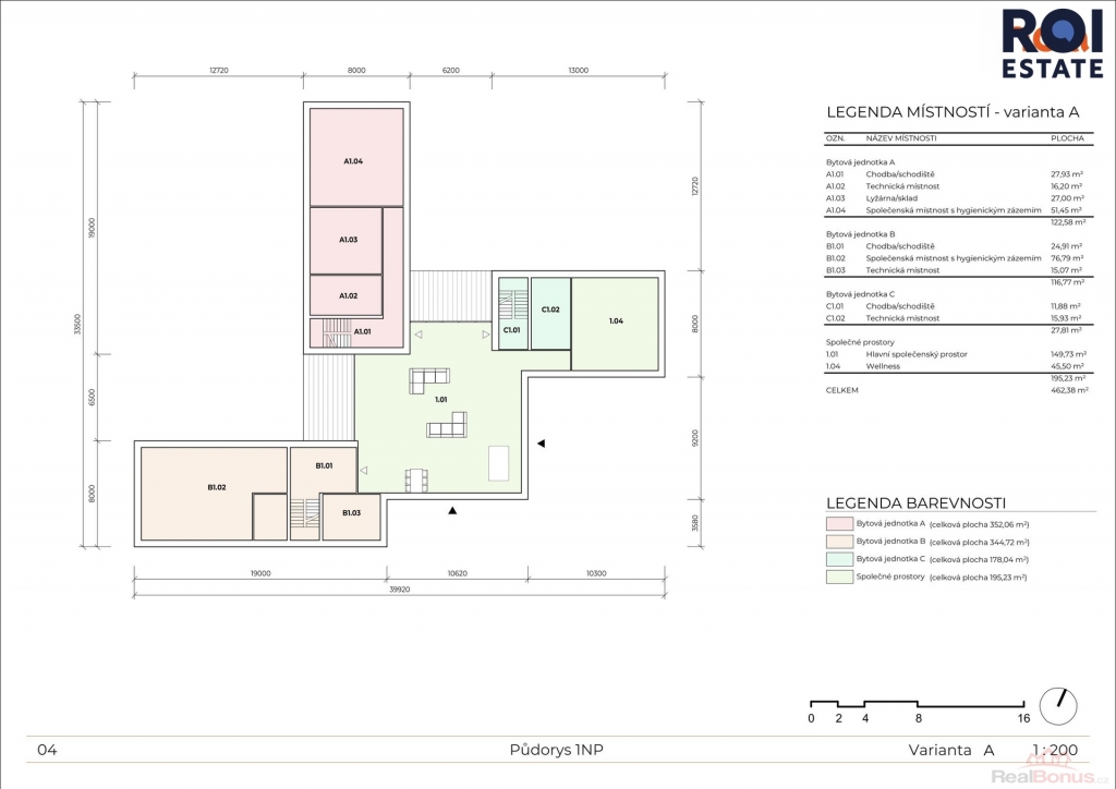
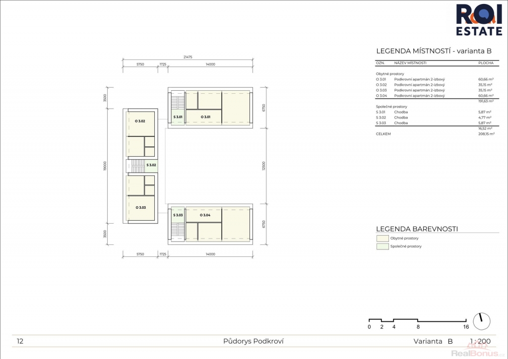
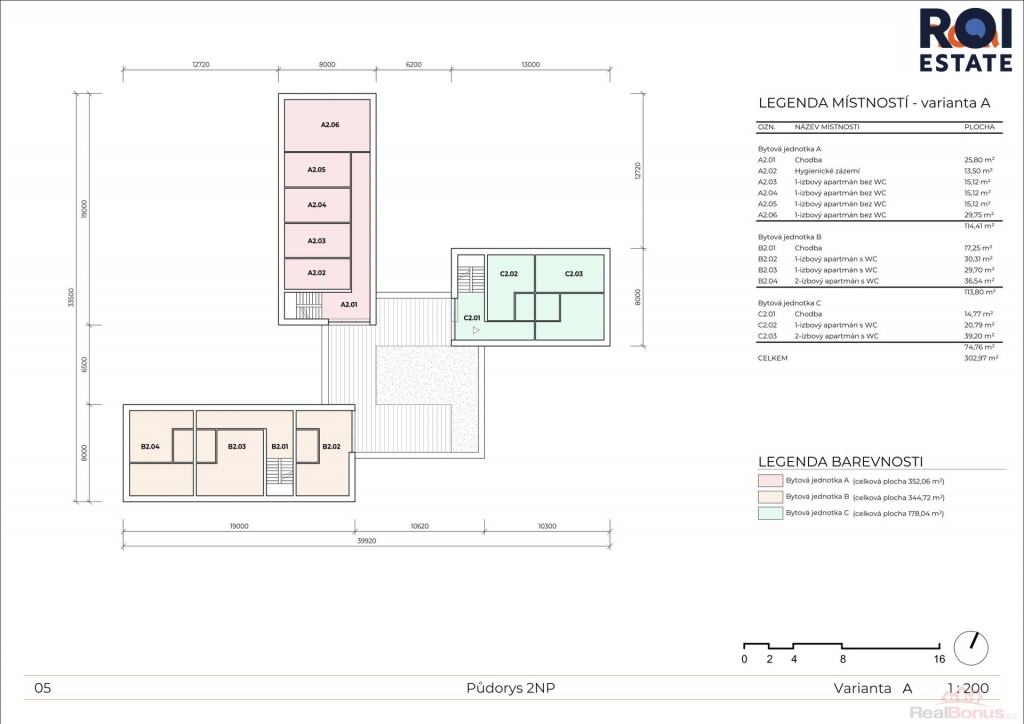
Na pozemku máme vytvořené dvě studie využitelnosti, které jsou projednané na stavebním úřadě i na obci a zobrazují tak skutečnou využitelnost pozemku jak při zachování současné stavby, tak při jejím odstranění.
Současné využití dále nabízí stylovou společenskou bouua s barem, výčepem a kapacitou cca 30 míst k sezení - skvělé místo pro oslavy, svatby nebo třeba dětskou hernu. Díky velkorysému prostoru nechybí ani taneční parket!
- Perfektní poloha pro aktivní život i relax
- 5 minut ke sportovnímu středisku České Petrovice (celoročně v provozu)
- Přímý vstup do přírody ? třeba na pašeráckou stezku kolem pohraničních bunkrů
- 10 minut k přehradě Pastviny (koupání, bobová dráha)
- 30 minut na Dolní Moravu, lyžařského areálu Říčky nebo na nákupy do Polska
Hledáte jedinečné místo s atmosférou a potenciálem? Pozemek i současný dům nabízí skvělou investiční příležitost i kouzelné bydlení v souladu s přírodou. Přijďte se přesvědčit osobně!
| Cena: |
(za nemovitost) 19 990 000,- Kč
(bez poplatků)
|
|---|
| Celková podlahová plocha | 670 m² |
|---|---|
| Telekomunikace | Internet |
| Topení | Ústřední - tuhá paliva Ústřední - elektrické |
| Doprava | silnice |
| Celková plocha | 670 m² |
| Plocha parcely | 9 674 m² |
| Druh pozemku | pro bydlení |
| Charakter okolní zástavby | venkovská |
| Druh stavby | rodinný dům, rekreační chalupa, rekreační pozemek |
| Poloha objektu | samostatný |




