| Číslo zakázky: | 5576 | ![]() Karta nemovitosti |
|---|---|---|
| Typ zakázky: | pronájem |
Nabízíme nájem kanceláří v administrativní budově v Králově Dvoře u Berouna, nedaleko Exitu dálnice D5.
K dispozici ihned. Nájem možný i po částech. Vlastní parkování. Nově dostavěno.
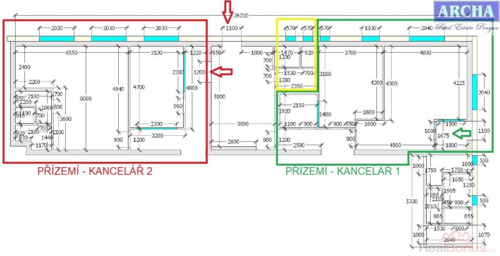
Plocha kanceláří: 60 až 145 m2
Cena nájmu: 179 Kč/m2/měsíc + energie
Kanceláře se nacházejí v přízemí s vlastním vstupem a v 1. patře též s vlastní vstupem .
Veškeré stavební práce vysoce kvalitní, možno klimatizace, internet, k dispozici i drobné sklady.
2 x samostatné WC a kuchyňka.
Parkování pro osobní auta poblíž objektu. Jednotlivé celky pod uzavřením - nájem možno samostatně. Okna, žaluzie, PC síť a wifi.
Jednání a rezervace - možné IHNED,
Provizi neplatíte.
ARCHA realitní kancelář
PRAHA
Telefon: 737851059, 702072257, 608135458
E-mail: archa-rk@seznam.cz
www.instagram.com/nemovitosti_archa
www.facebook.com/nemovitosti.archa
www.twitter.com/archa_life
www.archa-rk.cz
| Cena: | (za m2 / měsíc) 179,- Kč |
|---|
| Číslo podlaží v domě | 1 |
|---|---|
| Počet podlaží objektu | 1 |
| Druh objektu | cihlová |
| Stav objektu | novostavba |
| Energetická třída | B - Velmi úsporná |
| Umístění objektu | centrum |
| Vybaveno | Částečně zařízeno |
| Topení | Ústřední - plynové |
| Celková plocha | 190 m² |
| Účel budovy | Administrativní b. |
| Plocha kanceláří | 145 m² |
| Druh stavby | budova/y, hala/y |
| Poloha objektu | samostatný |
| Druh prostor | Kanceláře |




