
| Číslo zakázky: | 00154 | ![]() Karta nemovitosti |
|---|---|---|
| Typ zakázky: | prodej |
Ve výhradním zastoupení majitelů, Vám zprostředkuji koupi cihlového rodinného domu se zahrádkou v ulici Dr. Živanského č.p. 900 v městečku Rosice v okrese Brno ? venkov.
Na domu je započatá rekonstrukce, je třeba ještě dodělat minimálně koupelnu, aby byl dům obyvatelný.
Zastavěná plocha domu je 78 m2 s pozemkem o celkové ploše 323 m2.
Podlahová plocha domu je 122 m2 s užitnou plochou 148 m2.
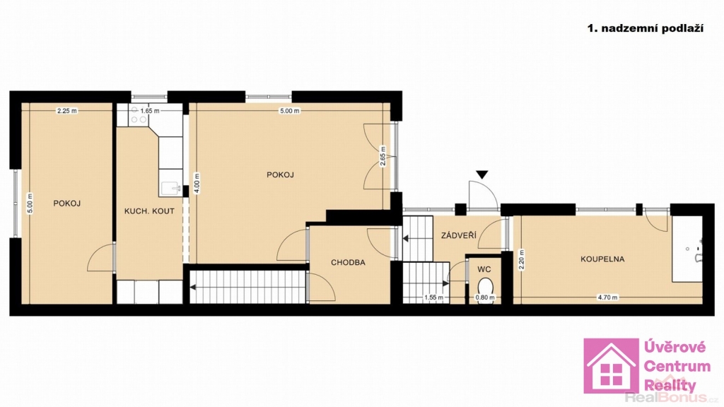
Dispozice domu:
suterén: chodba se schodištěm a tři skladovací prostory,
1 NP: koupelna, chodba, toaleta, chodba, pokoj s kuch. koutem a pokoj
2. NP: schodiště, toaleta, pokoj s kuch. koutem a terasa
Město Rosice má velmi dobrou občanskou vybavenost (obchod, pošta, kostel, obecní úřad, mateřská i základní škola, restaurace).
Do Brna dojedete za 25 minut.
Ihned k předání.
Zaujala Vás tato nabídka? Máte zájem o prohlídku? Vám vyhovující termín prohlídky (datum a čas) s kontakty na Vás (e-mail + tel. číslo) zasílejte formou odpovědi na tuto inzerci. Realitní makléř Vás následně bude telefonicky kontaktovat.
| Cena: |
(za nemovitost) 5 775 000,- Kč
(včetně poplatků, včetně provize, včetně právního servisu)
|
|---|
| Počet podlaží objektu | 2 |
|---|---|
| Celková podlahová plocha | 148 m² |
| Druh objektu | cihlová |
| Stav objektu | dobrý |
| Energetická třída | G - Mimořádně nehospodárná |
| Počet podlaží pod zemí | 1 |
| Plocha balkonu | 6 m² |
| Plocha sklepu | 35 m² |
| Vybavení | balkon sklep zahrada |
| Umístění objektu | centrum |
| Doprava | vlak dálnice silnice autobus |
| Voda | dálkový vodovod |
| Odpad | Městská kanalizace |
| Plyn | Zaveden |
| Celková plocha | 148 m² |
| Zastavěná plocha | 78 m² |
| Plocha parcely | 323 m² |
| Užitná plocha | 122 m² |
| Plocha zahrady | 156 m² |
| Inženýrské sítě | Vodovod Kanalizace Plyn |
| Charakter okolní zástavby | obytná |
| Poloha objektu | rohový |




