Prodej bytu 2+kk, 63 m2, OV, Holýšov (okres Plzeň-jih), ul. Luční

Prodej bytu 2+kk, 63 m2, OV, Holýšov (okres Plzeň-jih), ul. Luční

Nemovitost nabízí:

Kleisner Miroslav
Kleisner Miroslav
Mobil: +420 775 982 235
kleisner@mobilreality.cz

Kontaktovat makléře

Odeslat
Číslo zakázky: 43669/6  
Karta
nemovitosti
Typ zakázky: prodej
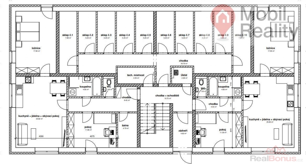
Novostavba 2+kk 72,8m2, balkon, parkovací stání

Byt (č.06) 2+KK o výměře 58,1 m2 + balkon 9,4 m2 a samostatný sklep o výměře 5,3 m2.

Představujeme Vám projekt bytového domu U squashe v centru Holýšova. V domě jehož výstavba je již v plném proudu bude 10 nadstandartních bytů. Budova je postavena jako nízkoenergetická a bude vybavena společnou fotovoltaickou elektrárnou, která zajišťuje velmi výrazný pokles ceny za energie. V návaznosti na to je každý byt vybaven el. podlahovým vytápěním a elektrickým ohřevem vody. V rámci kupní ceny je ke každému bytu v 1. a 2. patře k dispozici balkon o výměře 9,4m2, sklepní kóje a parkovací stání. Design veškerých obkladů a dlažeb lze vybrat individuálně ke každému bytu dle našeho katalogu. Předpokládaná kolaudace 03/2026. Více informací v kanceláři.

Cena: (za nemovitost)   4 780 000,- Kč

Informace o nemovitosti

Dispozice bytu2+kk
Číslo podlaží v domě2
Počet podlaží objektu3
Celková podlahová plocha63 m²
Druh objektucihlová
Stav objektunovostavba
Vlastnictvíosobní
Druh bytuv nájemním domě (činžovním)
Vybaveníbalkon
sklep
Umístění objektucentrum
VybavenoČástečně zařízeno
TopeníLokální - elektrické
Užitná plocha63 m²
Druh stavbybudova/y, hala/y
Poloha objektusamostatný
RealBonus.cz

Používáme cookies!

Tyto stránky používají a ukládají soubory cookies. Některé jsou nezbytné pro jejich správné fungování (tzv. technické cookies). Dále tyto stránky využívají marketingové a analytické cookies pro zkvalitnění našich služeb a přizpůsobení zobrazovaného obsahu. Pro jejich využití je nutný Váš souhlas. Více informací o cookies.