| Číslo zakázky: | 0946 | ![]() Karta nemovitosti |
|---|---|---|
| Typ zakázky: | pronájem |
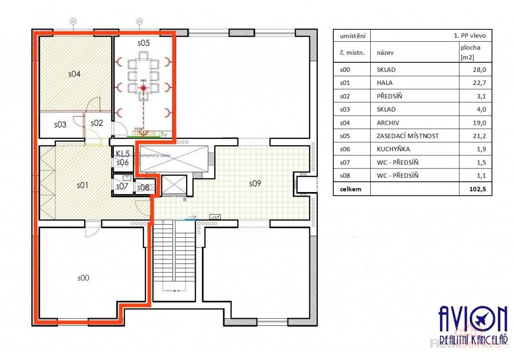
Kancelářské prostory ve sníženém přízemí administrativní budovy v Praze 5 - Smíchově, přímo u metra Anděl, ul. Bozděchova. Celková plocha 103 m2 se skládá ze čtyř hlavních místností. Z centrální haly 23 m2 se vstupuje do třech místností o rozlohách 28 m2, 19 m2 a zasedací místnosti 21 m2. V prostorách se dále nachází malý sklad (komora) 4 m2, kuchyňka a toaleta. Celé prostory jsou pod společným uzamčením s přístupem na magnetickou kartu a jsou klimatizované.
Možné využití pro kancelářský provoz, ale např. i pro zubní ordinaci, masáže atd.
Administrativní kancelářská budova disponuje recepcí a čtyřmi společnými jednacími místnostmi s možností rezervace, jejichž využívání je již zahrnuto v ceně nájmu. Objekt má 24/7 ostrahu.
Vynikající dopravní dostupnost přímo na dopravním uzlu na Andělu.
K dispozici ihned.
Energetickou třídu G uvádíme z formálních důvodů, po obdržení průkazu energetické náročnosti budovy bude uvedena skutečná hodnota.
| Cena: | (za m2 / měsíc) 280,- Kč |
|---|
| Číslo podlaží v domě | 1 |
|---|---|
| Počet podlaží objektu | 6 |
| Druh objektu | cihlová |
| Stav objektu | po rekonstrukci |
| Počet podlaží pod zemí | 1 |
| Umístění objektu | centrum |
| Vybaveno | Částečně zařízeno |
| Topení | Ústřední - plynové |
| Účel budovy | Administrativní b. |
| Druh stavby | budova/y, hala/y |
| Poloha objektu | v bloku |
| Druh prostor | Kanceláře |




