| Číslo zakázky: | 652319 | ![]() Karta nemovitosti |
|---|---|---|
| Typ zakázky: | prodej |
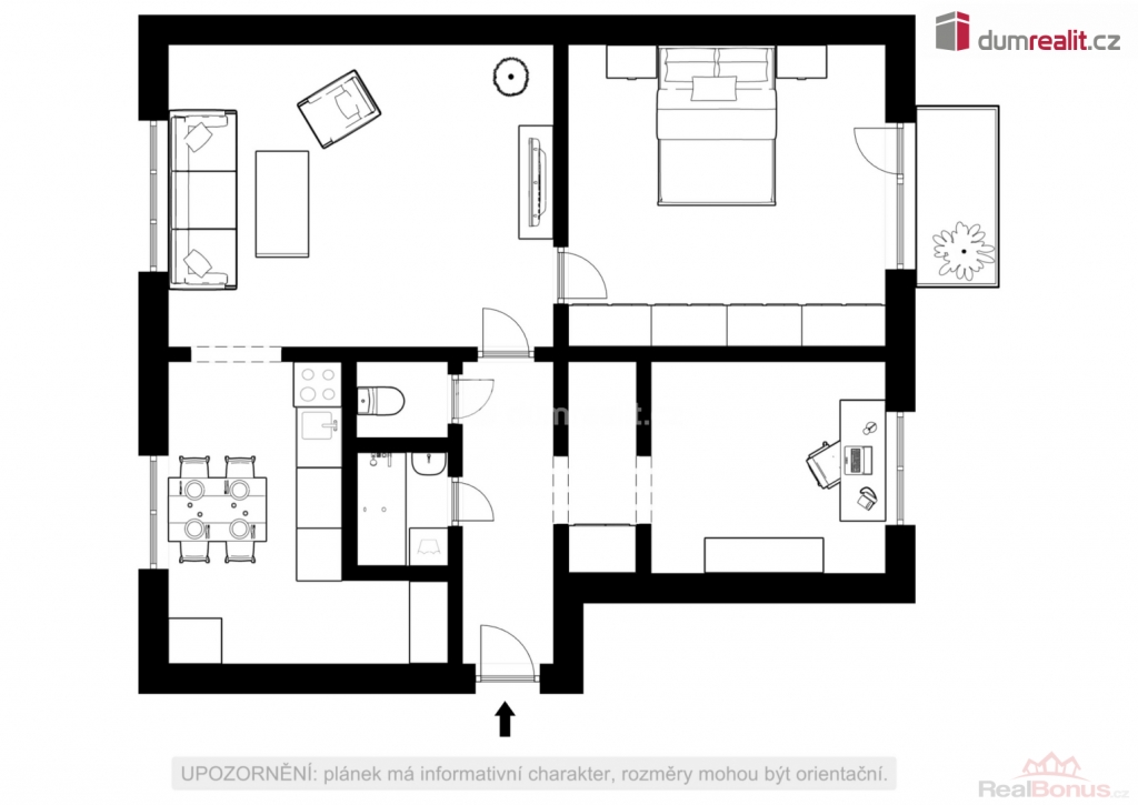
(včetně provize RK, veškerého právního servisu je cenou konečnou), Dumrealit.cz Vám zprostředkuje koupi bytové jednotky o dispozicích 3+1 v panelovém domě Na Valtické v Břeclavi - Charvátské Nové Vsi. Bytová jednotka má vstupní chodbu, ve které je vyřešen i úložný prostor, vstup do koupelny s vanou, samostatného WC, a tří pokojů. Kuchyň je zde uzavřena, a průchozí je pouze z obývacího pokoje. Byt je v osobním vlastnictví, bez závazků či dluhů, a v původním stavu, pouze s výměnou plastových oken. Skýtá tak možnost realizace bytu dle svých představ. Z jedné z ložnic je přístupná lodžie 3,1 m. Na domě proběhla výměna stoupacích šachet, vchodových dveří, zvonků, schránek, a je zde nový výtah. K dispozici prostorný sklep. Celková plocha s příslušenstvím (bez lódžie) 70,5 m. V okolí bytu se nachází škola, školka, hřiště, potravinový řetězec, služby, i zdravotnické středisko. Byt je připraven k nastěhování, a rekonstrukce už je plně ve vaší režii. Doporučujeme ke koupi. Ev. číslo: 651705. Energetický štítek: C (106 kWh/m2/rok).
| Cena: |
(za nemovitost) 3 670 000,- Kč
((včetně provize RK, veškerého právního servisu je cenou konečnou)) (včetně provize)
|
|---|
| Dispozice bytu | 3+1 |
|---|---|
| Číslo podlaží v domě | 6 |
| Počet podlaží objektu | 6 |
| Celková podlahová plocha | 68 m² |
| Druh objektu | panelová |
| Stav objektu | velmi dobrý |
| Energetická třída | C - Úsporná |
| Vlastnictví | osobní |
| Vybaveno | Nezařízeno |
| Užitná plocha | 68 m² |
