| Číslo zakázky: | 2411 | ![]() Karta nemovitosti |
|---|---|---|
| Typ zakázky: | prodej |
Exkluzivně nabízíme k prodeji rodinnou usedlost na rozhraní plzeňského a jihočeského kraje, Veřechov č.p. 7.
Nemovitost se nachází ve velmi klidné lokalitě s výhledem do Pošumaví. Poloha na konci vesnice zajišťuje dostatek soukromí. Neprůjezdná oblast. Cesta vede pouze k jedné zahradní chatce a k rybníku. Na pozemku vzrostlý ovocný sad švestky, jablka, rakytník v páru, vysazeny maliny, ostružiny. Prostorná a rovinatá zahrada nabízí řadu využití k relaxaci a sportu.
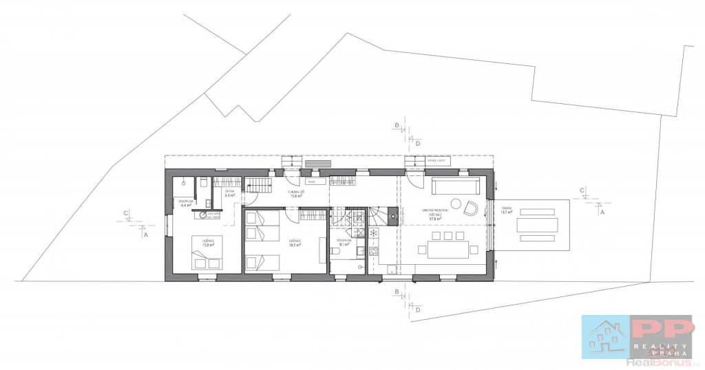
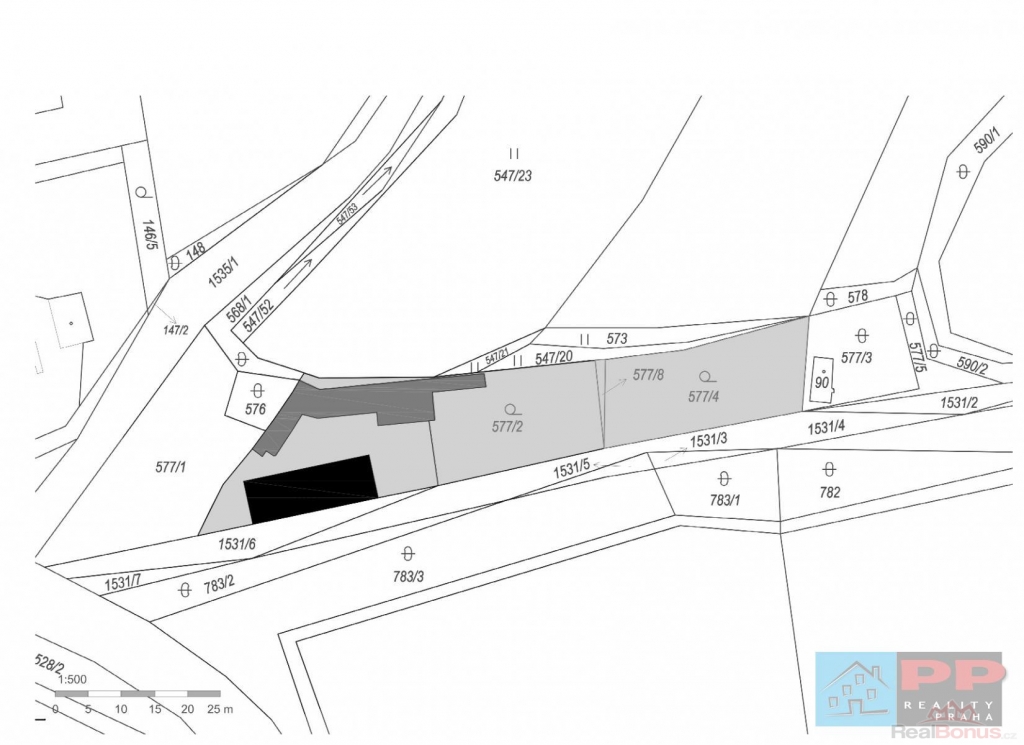
Zastavěná plocha domu je cca 128 m2. Celková zastavěná plocha nádvoří tvoří 534 m2. Zahrada tvoří 798 m2 krásné rovné plochy. Garáže zahrnují 132 m2 podlahové plochy. Celková plocha všech nemovitostí činí celkem 1.332 m2.
Dům je připraven pro rekonstrukci. Je vyklizen, jsou zlikvidovány podlahy, kompletně osekané staré omítky. Zdravé zdivo.
Ve spolupráci s architekty byl zpracován architektonický návrh rekonstrukce, kde se nabízí rovněž možnost využití velmi prostorného podkroví se 4-6 obytnými místnostmi + příslušenství..
Na rekonstrukci byl vypracován projekt pro stavební povolení.
Možnost vyřízení dotace na rekonstrukci ve výši cca 1.250.000 Kč.
Podkrovní prostor je možné využít také jako samostatnou bytovou jednotku o velikosti cca 128 m2 zastavěné plochy. Částečné podsklepení domu je vhodné k uchovávání úrody - stálá teplota.
Na pozemku se nachází také hospodářské budovy a garáže o celkové zastavěné ploše 152 m2. Hospodářské budovy a garáže prošly rekonstrukcí, byly obnoveny všechny venkovní povrchy fasád. Z budov tvořící příslušenství se zde nachází letní kuchyně (nutná rekonstrukce), sklady nářadí, prostorná dílna, 2 garáže pro celkem 3 vozidla, sklad dřeva, sklady zahradní techniky. V objektech je možno umístit podnikatelskou aktivitu, jako je dílna, autodílna, nerušící výrobna apod.
Hospodářské budovy s chalupou tvoří uzavřený dvůr elegantně navazující na slunnou zahradu.
Do domu byla zavedena voda z městského vodovodního řadu. Městská kanalizace je nyní ve fázi schváleného projektu a předpokládaný termín realizace je v horizontu 1 roku. V současné době je dům napojen na septik.
V objektu hospodářských budov se nachází studna, která je vhodná jako užitková voda pro zalévání nebo jinou podobnou činnost. Objekty jsou napojeny na elektrickou energii. Do domu je zaveden internet, wifi, vše funkční.
| Cena: |
(za nemovitost) 2 750 000,- Kč
(konečná cena vč. právního servisu)
|
|---|
| Číslo podlaží v domě | 1 |
|---|---|
| Počet podlaží objektu | 2 |
| Celková podlahová plocha | 157 m² |
| Druh objektu | cihlová |
| Počet podlaží pod zemí | 1 |
| Vlastní pozemek | 1 332 m² |
| Vybavení | sklep |
| Umístění objektu | okrajová zástavba |
| Vybaveno | Částečně zařízeno |
| Topení | Lokální - tuhá paliva |
| Elektřina | 230 V |
| Připojení na internet | Jiné |
| Zastavěná plocha | 128 m² |
| Plocha parcely | 1 332 m² |
| Užitná plocha | 157 m² |
| Plocha zahrady | 798 m² |
| Inženýrské sítě | Vodovod Elektřina |
| Druh stavby | rodinný dům, rekreační chalupa, rekreační pozemek |
| Poloha objektu | samostatný |




