| Číslo zakázky: | 969714 | ![]() Karta nemovitosti |
|---|---|---|
| Typ zakázky: | prodej |
Nabízíme k prodeji prostorný rodinný dům 200 m2 po kompletní rekonstrukci s pozemkem o velikosti 736 m2 v atraktivní lokalitě Pardubičky, který je ideální jak pro vícegenerační bydlení, tak jako investiční příležitost s potenciálem stabilního výnosu.
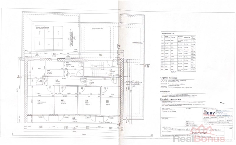
Dům je rozdělen na 3 samostatné bytové jednotky:
Přízemí: 2x byt o dispozici 2+1, s vlastním vstupem.
Patro: prostorný a atypicky řešený byt 4+1, který nabízí zajímavý investiční potenciál v podobě krátkodobého ubytování.
Nemovitost byla dosud využívána jako ubytovna jelikož se nachází pouhý 1km od největšího zaměstnavatele ve městě firmy Foxconn a generovala zajímavý měsíční příjem, což z ní činí výbornou investici pro podnikatele či investory hledající nemovitost s okamžitým výnosem nebo potenciálem přestavby na moderní bytové jednotky.
Pozemek o velikosti 736m2 nabízí spoustu možností na realizaci vašich představ ať se bude jednat o Vaše bydlení, nebo o realizaci investičního záměru.
Dům je napojen na veřejný vodovod, kanalizaci i plyn.
Vytápění je řešeno plynovým kotlem.
Lokalita nabízí výbornou dopravní dostupnost a kompletní občanskou vybavenost v blízkosti se nachází školy, obchody, zastávky MHD i příjemné možnosti pro volnočasové aktivity. Parkování je možné přímo u domu.
V případě jakýchkoliv dotazů mě neváhejte kontaktovat.
| Cena: |
(za nemovitost) 13 999 999,- Kč
(+ provize RK)
|
|---|
| Počet podlaží objektu | 2 |
|---|---|
| Celková podlahová plocha | 200 m² |
| Druh objektu | smíšená |
| Stav objektu | velmi dobrý |
| Energetická třída | G - Mimořádně nehospodárná |
| Vlastnictví | osobní |
| Vlastní pozemek | 736 m² |
| Vybaveno | Nezařízeno |
| Plyn | Zaveden |
| Stáří objektu | 1 970 |
| Zastavěná plocha | 124 m² |
| Užitná plocha | 200 m² |
| Počet bytů - celkem | 3 |
| Poloha objektu | samostatný |




