| Číslo zakázky: | 31987 |  Karta nemovitosti | 
|---|---|---|
| Typ zakázky: | pronájem | 
+popl. 3400, + provize RK, převod elektřiny a plynu na nájemce cca 3500,-Kč, poplatky pro dvě osoby cca 3400,-, Zprostředkujeme Vám ve výhradním zastoupení majitele, dlouhodobý pronájem bytu  2+1 v jedné z nejoblíbenějších částí Prahy  v těsné blízkosti Letné, přímo ve Veletržní ulici. Byt se nachází v klasickém činžovním domě s historickým kouzlem.
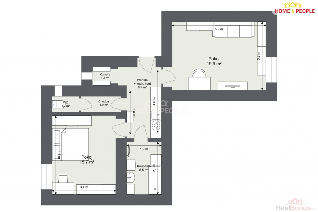
Dispozice bytu aktuálně zahrnuje dvě neprůchozí místnosti jedna má okna do klidného vnitrobloku, kuchyň v prostorné chodbě, koupelnu a samostatné WC, komora. Byt je kompletně vybaven, ale je možné i část vystěhovat, vše na dohodě.
Vysoké stropy, původní špaletová okna a dostatek prostoru, který má charakter a atmosféru typickou pro pražské byty z počátku 20. století.
Letná je jednou z nejžádanějších lokalit v Praze  v těsné blízkosti bytu se nachází Stromovka a Letenské sady, ideální pro procházky, sport i relaxaci. Kousek od domu najdete množství kaváren, restaurací, obchodů, galerií i kulturních institucí.
Dopravní dostupnost je vynikající  stanice metra C a několik tramvajových linek v pěší vzdálenosti zajistí rychlé spojení do centra i dalších částí města.
Pro více informací neváhejte kontaktovat makléře či na mém webu najdete všechny fotografie. K dispozici dle dohody. Prohlídky dle telefonické domluvy. Těším se na naše společné setkání na prohlídce. Ev. číslo: 31987. Energetický štítek: G (1 kWh/m2/rok).
| Cena: | (za měsíc)   19 000,- Kč (+popl. 3400, + provize RK, převod elektřiny a plynu na nájemce cca 3500,-Kč, poplatky pro dvě osoby cca 3400,-) | 
|---|
| Dispozice bytu | 2+1 | 
|---|---|
| Číslo podlaží v domě | 1 | 
| Počet podlaží objektu | 6 | 
| Celková podlahová plocha | 52 m² | 
| Druh objektu | cihlová | 
| Stav objektu | dobrý | 
| Energetická třída | G - Mimořádně nehospodárná | 
| Vlastnictví | osobní | 
| Vybaveno | Nezařízeno | 
| Užitná plocha | 52 m² | 





