| Číslo zakázky: | 652965 | ![]() Karta nemovitosti |
|---|---|---|
| Typ zakázky: | prodej |
Cena včetně provize RK a právního servisu, k prodeji stavební pozemek o výměře 859 m v obci Kačice, okres Kladno. Pozemek tvoří parc. č. 424/65 a 424/56 a nachází se v nové rezidenční čtvrti s rodinnými domy.
Pozemek je plně zasíťovaný k dispozici je elektřina, plyn, obecní vodovod, kanalizace a optický internet.
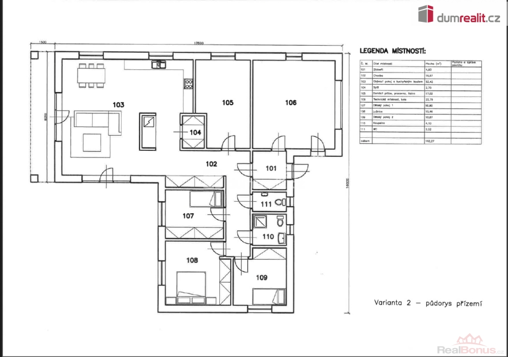
Velkou výhodou je, že se prodává s platným stavebním povolením a kompletním projektem rodinného domu 4+kk s valbovou střechou, akumulační nádrží na dešťovou vodu a dvěma parkovacími místy. Nový majitel tak může okamžitě zahájit výstavbu bez zdlouhavého vyřizování.
Regulace dle územního plánu Kačice
zastavitelnost až 45 % plochy pozemku (cca 387 m) možnost postavit prostorný rodinný dům s garáží či doplňkovými stavbami
přípustná výstavba: 1 nadzemní podlaží + obytné podkroví
Výhody pozemku
plocha 859 m (parc. č. 424/65 a 424/56)
kompletní inženýrské sítě včetně optiky
stavební povolení a projekt v ceně
možnost okamžité výstavby
klidná lokalita s novou zástavbou
výborná dopravní dostupnost: Praha 20 minut (rychlý nájezd na D6), Kladno jen pár minut
Občanská vybavenost
Obec Kačice nabízí mateřskou i základní školu, obchod, restaurace a další služby. V okolí jsou lesy, cyklostezky a možnosti rodinného vyžití, což zvyšuje atraktivitu pro bydlení.
Tento pozemek není jen prázdná parcela, ale kompletně připravený základ pro okamžitou výstavbu rodinného domu. Pokud hledáte místo, kde můžete bez zbytečných průtahů realizovat své bydlení, je to ideální volba. Ev. číslo: 652351. Energetický štítek: A (1 kWh/m2/rok).
| Cena: |
(za nemovitost) 6 400 000,- Kč
(Cena včetně provize RK a právního servisu) (včetně provize)
|
|---|
| Energetická třída | A - Mimořádně úsporná |
|---|---|
| Vlastní pozemek | 859 m² |
| Druh pozemku | pro bydlení |




