| Číslo zakázky: | 1253 | ![]() Karta nemovitosti |
|---|---|---|
| Typ zakázky: | prodej |
Realitní kancelář vám nabízí vícegenerační rodinný dům, který se nachází v části města Litoměřice Předměstí, ulice 28. října. Tato městská část je místními obyvateli často vyhledávaná pro svůj klid a dostupnost do historického centra města. V Litoměřicích je kompletní občanská vybavenost. Mimo již zaběhlý standard zde navíc najdete krytý plavecký bazén, zimní stadion, Labskou cyklostezku, tenisové kurty, koupaliště, parky a spoustu kulturních zařízení nebo historických památek. Nudit se zde rozhodně nebudete.
Rodinný dům má 2. NP, sklep, garáž a půdu, která je z části obytná. Dům byl postaven cca v roce 1904. Střecha domu je sedlová s krytinou z betonových tašek. Střešní dřevěná konstrukce jako krokve, vaznice jsou původní. Okapy a svody dešťové vody taktéž. Dům má dva komíny, přičemž jeden byl užíván jako odvod spalin pro kotel na uhlí, druhý užíván nebyl. Objekt není zateplen, ani jakkoliv izolován proti vlhkosti vyjma parozábrany ve formě fólie nad krokvemi a skelné vaty ve stropních konstrukcích na půdě. Omítka je částečně dochována pouze na východní straně domu. Na západní straně omítka není vůbec. Na západní straně jsou osazeny dřevěná špaletová okna a dřevěné vchodové dveře. Na východní straně byli původní okna vyměněna v 80. letech za dřevěná velkoformátová okna.
Objekt je napojen na el. energii 230 V - 380 V. Celá elektroinstalace je v hliníku, rozvody již technicky nevyhovují, voda je do domu přiváděna z veřejného vodovodu. Odpadní vody jsou svedeny do veřejné kanalizace. Zemní plyn je zaveden, avšak dříve byl užíván pouze pro vaření, přípojka do domu tedy je, ale plynoměr osazen není. Vytápění je ústřední kotlem na tuhá paliva (uhlí) s rozvodem tepla do litinových radiátorů v obou nadzemních podlažích, v kombinaci s bojlery na ohřev TUV. Vytápění v obytné podkrovní místnosti je řešeno přímotopem. Sklep vytápěn není.
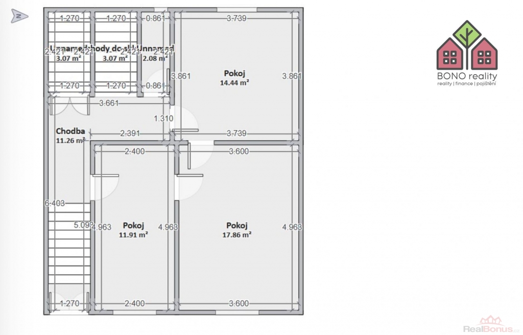
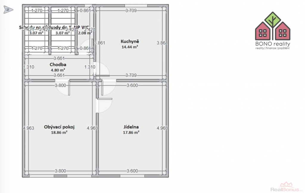
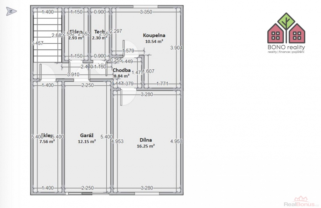
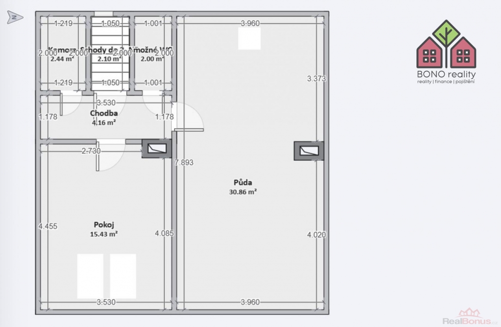
Dispozice domu jsou následující: v 1. PP jsou dvě místnosti původně užívané jako sklad zeleniny, dále dílna, koupelna (zde je umístěn kotel), technická místnost a garáž. V 1. NP (byt 2+1) je centrální chodba, pokoj, obývací pokoj a kuchyně, WC je na chodbě. V 2. NP (byt 2+1) je centrální chodba, obývací pokoj, kuchyně, jídelna, samostatné WC je opět na chodbě. V obou nadzemních patrech se dá rozšířením dispozice vybudovat i koupelny, které tu aktuálně nejsou. Nad tímto prostorem je z 1/2 půda a vedle půdy je menší obytný prostor užívaný jako pokoj, chodba a dvě komory pro uskladnění. V těchto prostorách je možnost vybudovat další byt o dispozici 1+1 nebo 2+kk. Součástí nahraných fotografií jsou vizualizace některých prostor domu a půdorysy jednotlivých podlaží včetně rozměrových kvót. Vezměte prosím na vědomí, že v daném měření může být mezní odchylka. Za domem (západní strana) je menší zahrada o výměře 80 m2, která je po celém obvodu ohraničena a roste tu krásný velký ořech. Parkování je dostupné na ulici nebo v menší garáži přímo v domě. Pro více informací či sjednání termínu prohlídky volejte realitnímu makléři. Těšíme se na vás.
| Cena: |
(za nemovitost) 6 900 000,- Kč
(Hypoteční úvěr Vám zajistíme.)
|
|---|
| Číslo podlaží v domě | 1 |
|---|---|
| Počet podlaží objektu | 2 |
| Druh objektu | cihlová |
| Stav objektu | před rekonstrukcí |
| Energetická třída | G - Mimořádně nehospodárná |
| Počet podlaží pod zemí | 1 |
| Vlastní pozemek | 226 m² |
| Vybavení | sklep |
| Umístění objektu | klidná část obce |
| Vybaveno | Možno zařídit |
| Topení | Ústřední - tuhá paliva |
| Elektřina | 230 V |
| Plyn | Zaveden |
| Připojení na internet | Jiné |
| Zastavěná plocha | 89 m² |
| Plocha parcely | 226 m² |
| Plocha zahrady | 80 m² |
| Inženýrské sítě | Vodovod Kanalizace Plyn Elektřina |
| Druh stavby | rodinný dům, rekreační chalupa, rekreační pozemek |
| Poloha objektu | řadový |




