| Číslo zakázky: | 00003 | ![]() Karta nemovitosti |
|---|---|---|
| Typ zakázky: | prodej |
Zavedená, prosperující a zisková restaurace Pod Hradem v Českém Šternberku, která nemá v širokém okolí významnou konkurenci.
Návratnost investice nejpozději v rozmezí 10 až 13 let při současném provozu. Znalcem vypracován tržní odhad nemovité věci společně s výnosností, vše bude předloženo. Podrobná roční rozvaha k dispozici.
Představuji vám jedinečnou příležitost převzít celoročně perfektně fungující podnik s dlouhou tradicí a výbornou pověstí. Restaurace Pod Hradem těží ze své strategické polohy v turisticky atraktivní lokalitě přímo pod hradem Český Šternberk (návštěvníků více jak 85 tis/rok). Řeka Sázava zajišťuje další hosty v podobě vodáků během sezony, kolem restaurace vedou tři cyklostezky. Můžete zde pořádat svatby, oslavy, firemní akce. V sezoně se zde stojí fronty na volný stůl.
Restaurace si vybudovala natolik dobrou pověst, že je pravidelně navštěvována i obyvateli z okolí a širokého regionu.
Okamžitá připravenost k provozu, stačí nakoupit suroviny a můžete fungovat bez dalších výrazných investic.
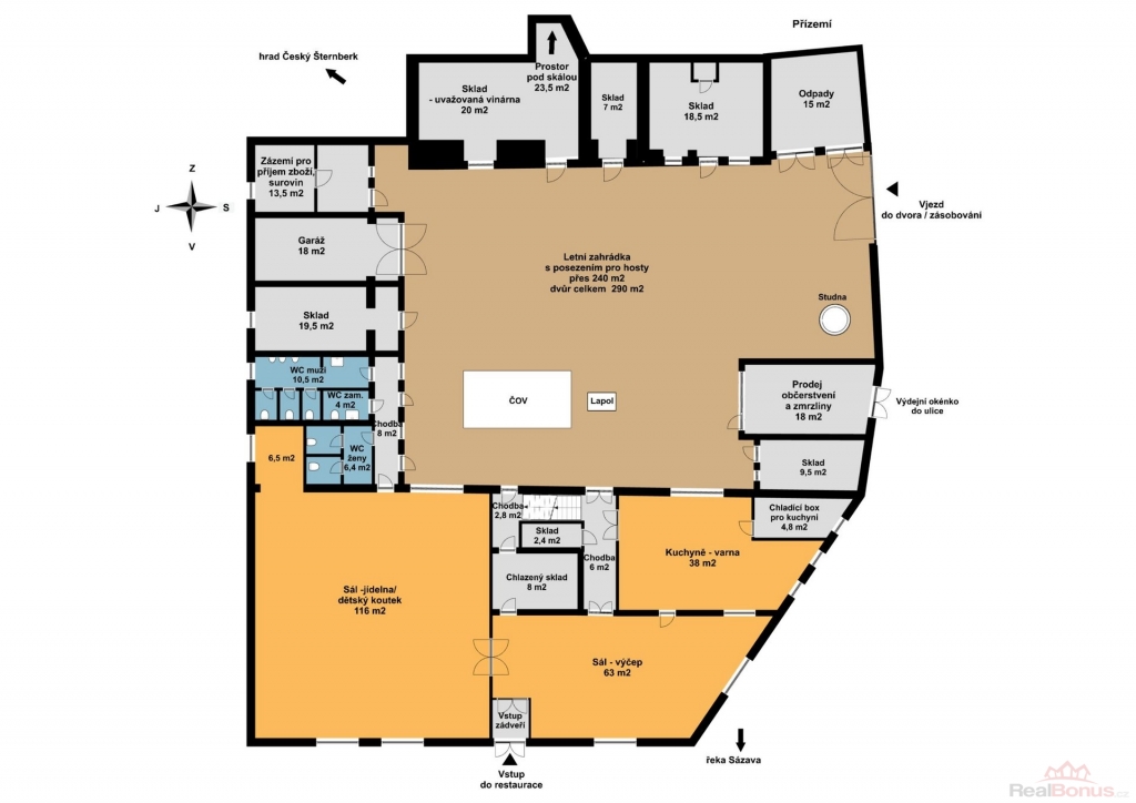
Hlavní budova:
Užitná plocha přízemí 331 m2 (restaurace, výčep, dětský koutek, kuchyně s chladícím boxem, sociální zařízení, sklady a chodby). Excelentní, funkčně řešený otevřený prostor hlavní části restaurace s výčepem a navazující kuchyní. Stávající kapacita přes 100 osob. Kompletní náklady na provoz restaurace (elektřina, vytápění, plyn, voda, odpad) činí 380 tis. Kč/rok.
Sklepní prostory pod budovou 56 m2, sloužící pro uskladnění, technické zázemí, případně část jako kotelna a další jiné využití.
Letní zahrádka o ploše 250 m2, současná kapacita 100 osob.
Samostatná prodejna zmrzliny o 18 m2 s výdejním okénkem do ulice, vybavená a připravená k provozu s kompletním zázemím, která výrazně přispívá k celkovému obratu podniku.
Skladovací prostory o velikosti 45 m2 v části naproti hlavní budově nabízí možnost vybudování menšího vinného sklípku a třeba i udírny, která zde již v minulosti byla.
Vjezd pro zásobování zajištěn vraty z ulice přímo do dvora.
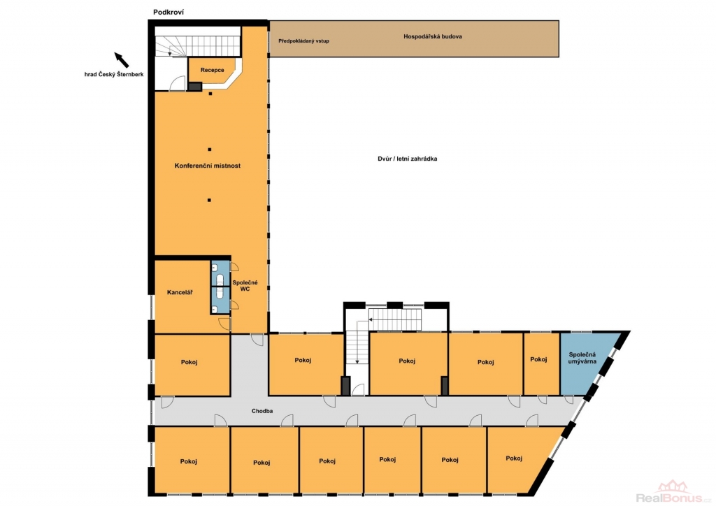
Plocha podkroví 300 m2 nabízí možnost vybudování ubytování. Dříve zde pokoje již byly a návrat k využití je realizovatelný. Počítáno s 11 pokoji, konferenční místností, recepcí a společným sociálním zařízením. Vhodné si zde vybudovat vlastní bydlení.
Rekonstrukce stavebních a technických prvků proběhla v letech 2014?2017, zateplení obvodového zdiva, podlah a stropů mezi přízemím a podkrovím, výměna stropních trámů, instalace plastových, dřevěných oken a dveří. Komplet nová elektroinstalace, rozvaděč 3x80A, vodoinstalace. Vytápění elektrickým kotlem s ústředním topením. Vyvložkování komínu, možnost okamžitého napojení kotle na TP. Připojení na obecní vodovod a vlastní studnu (pro užitnou vodu), odpad řešen přes velkokapacitní vlastní ČOV. Zabezpečeno alarmem, kamerami.
Rozšíření kapacity restaurace a dvorku přidáním dalších stolů umožní navýšit počet hostů během nejvytíženějších období, dále pak zprovoznění vinného sklípku v hospodářské budově.
Restaurace je vybavena profesionální technikou z nerezové oceli a ostatním vybavením (komplet vybavení kuchyně, kuchyňské spotřebiče, míchače, konvektomaty, kávovary, zmrzlinovač, platební terminály, stoly, židle atd). Veškeré movité vybavení je udržováno, repasováno, kontrolováno, s revizemi, ve výborném stavu a může být odkoupeno za cenu 2 mil. Kč + DPH. Kompletní seznam zařízení bude předložen vážným zájemcům.
Nemovitost není v povodňovém pásmu ani 100 leté vody, ochranné památkové pásmo.
Parkování zajištěno na obecním parkovišti před restaurací.
Současní majitelé odcházejí s těžkým srdcem, nikoliv však z ekonomických důvodů ? podnik je v perfektní kondici, plně fungující a připraven na další provoz a rozvoj. Při prohlídce vám vše rád vysvětlím.
Veškeré stavební projekty, pasporty, revize, opravy, přehled nákladů jsou k dispozici.
Kontaktujte mě ještě dnes, podobné příležitosti jsou velmi vzácné.
Více informací najdete na mém webu, odkaz v profilu makléře.
| Cena: |
(za nemovitost) 26 000 000,- Kč
(možnost zakoupení veškerého movitého funkčního vybavení za cenu 2mil. Kč, včetně provize, včetně právního servisu)
|
|---|
| Počet podlaží objektu | 2 |
|---|---|
| Celková podlahová plocha | 750 m² |
| Druh objektu | smíšená |
| Stav objektu | velmi dobrý |
| Počet podlaží pod zemí | 1 |
| Umístění objektu | centrum |
| Telekomunikace | Telefon Internet |
| Topení | Ústřední - elektrické |
| Doprava | vlak dálnice silnice MHD autobus |
| Voda | dálkový vodovod |
| Odpad | ČOV pro celý objekt |
| Rok rekonstrukce | 2 014 |
| Stáří objektu | 184 |
| Rok kolaudace | 1 960 |
| Parkování | garáž |
| Celková plocha | 750 m² |
| Zastavěná plocha | 499 m² |
| Plocha parcely | 801 m² |
| Ostatní | Garáž Parkoviště |
| Užitná plocha | 480 m² |
| Užitná plocha v přízemí | 424 m² |
| Komunikace | asfaltová |
| Inženýrské sítě | Vodovod |
| Charakter okolní zástavby | obytná |
| Poloha objektu | samostatný |
| Typ zařízení | Restaurace |
