| Číslo zakázky: | 970895 | ![]() Karta nemovitosti |
|---|---|---|
| Typ zakázky: | prodej |
Hledáte investiční příležitost v okolí Nové Paky? Příležitost v podobně ubytovacího zařízení či jiných možností? Pokud ano, tak tato nabídka prodeje budovy občanské vybavenosti o velikosti 373 m2 a celkovým pozemkem 813 m2 v obci Vidochov je právě pro vás.
Jedná se o zděnou stavbu, která je kolaudovaná jako objekt občanské vybavenosti a nabízí tak široké možnosti využití.
Aktuálně se v podkroví nemovitosti nachází 7 malých ubytovacích jednotek a v přízemí 1 ubytovací jednotka a komerční prostor se zázemím. Komerční prostor sloužil dříve jako hospoda, prodejna potravin a další. Stavba prošla zhruba před 12 15 lety částečnou rekonstrukcí. Byly udělané nové rozvody elektřiny, vody, odpadů a omítky a další drobné opravy. Objekt byl dříve kompletně pronajat. Nyní je téměř prázdný a pouze udržovaný.
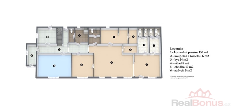
Pro lepší představu a orientaci, jsme si pro vás připravili půdorysy, které jsou součástí fotografií. Ubytovací jednotky a prostory jsou vždy barevně odděleny a vyznačeny
Součástí každé ubytovací jednotky je sociální zařízení (umyvadlo, sprcha, wc a možnost přípravy na pračku a bojler na ohřev vody). Dvě ubytovací jednotky mají sociální zařízení přidělené přes chodbu. Každá ubytovací jednotka má přípravu na kuchyňskou linku (vývody vody a odpadů). Vytápění bylo zajištěno el. přímotopy
Komerční prostor je tvořen třemi částmi a samozřejmostí je prostor pro zázemí, kuchyň a wc pro personál i hosty.
Dispozice:
Přízemí: zádveří, chodba, komerční prostor se zázemím, ubytovací jednotka, koupelna s toaletou, sklad a schodiště do podkroví
Podkroví: chodba, 7 ubytovacích jednotek, koupelna s wc a schody na půdu.
Přípojky: elektřina 220V (momentálně bez přívodu el. energie), voda ze studny, jímka, vytápění dříve na přímotopy, ohřev vody přes bojlery
Budeme se těšit na Váš zájem a věříme, že si nemovitost najde brzy nového majitele, který využije její velký potenciál. Tuto nemovitost Vám velice doporučuji a rád Vám sdělím více informací po telefonu a přivítám na prohl...
| Cena: |
(za nemovitost) 4 500 000,- Kč
(+ provize RK)
|
|---|
| Počet podlaží objektu | 2 |
|---|---|
| Celková podlahová plocha | 373 m² |
| Druh objektu | cihlová |
| Stav objektu | dobrý |
| Energetická třída | F - Velmi nehospodárná |
| Vlastnictví | osobní |
| Vlastní pozemek | 813 m² |
| Vybaveno | Nezařízeno |
| Zastavěná plocha | 263 m² |
| Užitná plocha | 373 m² |
| Nebytové prostory | 373 m² |
