| Číslo zakázky: | 653678 | ![]() Karta nemovitosti |
|---|---|---|
| Typ zakázky: | pronájem |
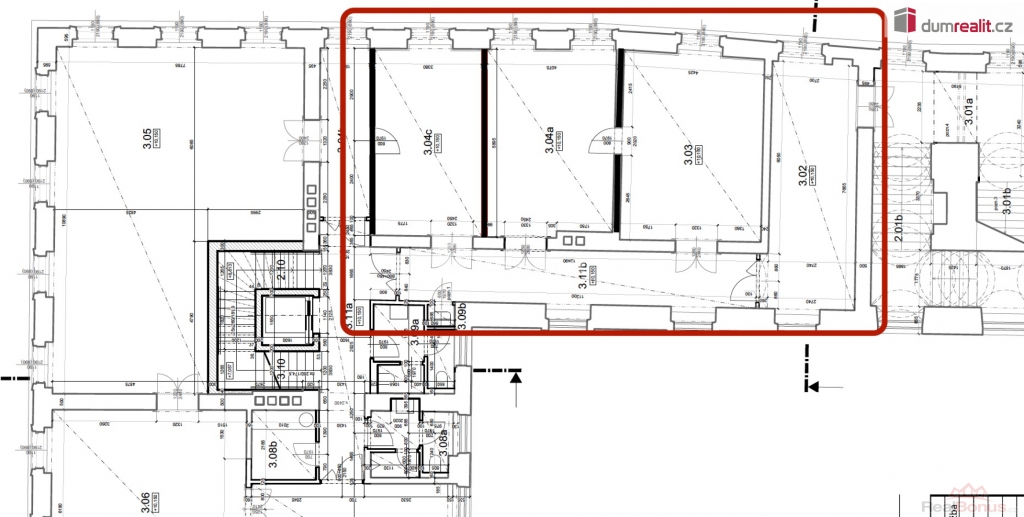
Ceny jsou uvedené bez DPH, Pronájem uzavřeném souboru čtyř samostatných kanceláří s vysokým stropem, o celkové výměře 113,42m, v krásném celkově zrekonstruovaném prestižním objektu, klášteře sester Voršilek, přímo na ul. Národní, navazující na kostel vrcholně barokní stavby svaté Voršily.
Kanceláře se nachází na 3.NP s výtahem. Tři kanceláře mají orientaci do ul.: Voršilská, (dvě z kanceláří se dají odstraněním příčky spojit v jednu větší) a jedna jak do krásného udržovaného vnitrobloku, tak do ul. Voršilská. Kanceláře jsou vzájemně propojeny spojovací chodbou, která má výhled pouze do vnitrobloku. Prostory jsou klimatizované, připojení na internet je samozřejmostí, ve velké kanceláři jsou instalované stropní akustické desky a v oknech jsou rolety.
Před kancelářemi je společná chodba, kde se nachází pánské a dámské WC a společná kuchyňka, výtah a schodiště.
K pronájmu je možnost i parkovacího místa v ul.: Voršilská za cenu 3.500,-Kč/měsíc,
nebo ve vnitrobloku za 6.000,-Kč.
Prostory, které nabízíme k pronájmu, mají celkovou rozlohu 113,42 m a nájemné je za první měsíc zvýhodněné na cenu 28 000,-Kč, dále pak 49 000,-Kč.
cena za společné prostory a sociální zázemí (celková výměra 42,07 m) je 105,-Kč/m = 4 417,-Kč
Služby za měsíc jsou ve výši 100,-Kč/m předmětných prostor což je 11 342,-Kč, které jsou po roce vyúčtované.
Cena za služby obsahuje: - Ostraha objektu
- Společná elektřina (osvětlení spol. prostor, výtah)
- Údržba a servis výtahu
- Vytápění společných prostor
- Správa budovy
- Úklid společných prostor
- Údržba přístupových a obslužných komunikací
- Odvoz společného i tříděného odpadu.
Veškeré ceny jsou uvedeny bez 21% DPH
Energie v prostorech se převádí na nájemce, každý nájemce má vlastní elektroměr. Ev. číslo: 653064. Energetický štítek: C (102 kWh/m2/rok).
| Cena: |
(za měsíc) 49 000,- Kč
(Ceny jsou uvedené bez DPH)
|
|---|
| Počet podlaží objektu | 4 |
|---|---|
| Druh objektu | cihlová |
| Stav objektu | po rekonstrukci |
| Energetická třída | C - Úsporná |
| Umístění objektu | centrum |
| Vybaveno | Nezařízeno |
| Topení | Lokální - plynové |
| Počet míst k parkování | 6 |
| Užitná plocha | 113 m² |
| Druh prostor | Kanceláře |
