| Číslo zakázky: | 53014 | ![]() Karta nemovitosti |
|---|---|---|
| Typ zakázky: | prodej |
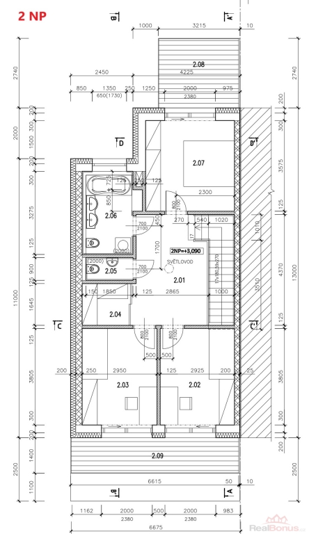
Výstavba nového cihlového řadového rodinného domu č. 15 v Pasohlávkách. Dům je energeticky velmi úsporný (třída A). Jedná se o řadový rodinný dům 4+kk na pobřeží Mušovských jezer ve druhé etapě výstavby projektu Rezidence Pasohlávky. Dům nabídne moderní a funkční dispozice, maximálně využitý prostor, dvě parkovací místa a pohodlné bydlení pro celou rodinu. Navržená dispozice může mít několik modifikací, jejich návrhy rádi zašleme, například až na 5+kk.
| Cena: |
(za nemovitost) 11 285 750,- Kč
(včetně DPH, včetně provize)
|
|---|
| Druh objektu | cihlová |
|---|---|
| Stav objektu | novostavba |
| Energetická třída | A - Mimořádně úsporná |
| Plocha teras | 34 m² |
| Vybavení | terasa |
| Umístění objektu | centrum |
| Zastavěná plocha | 134 m² |
| Plocha parcely | 244 m² |
| Užitná plocha | 134 m² |
| Charakter okolní zástavby | rekreační |
| Poloha objektu | řadový |




