| Číslo zakázky: | 23706 | ![]() Karta nemovitosti |
|---|---|---|
| Typ zakázky: | pronájem |
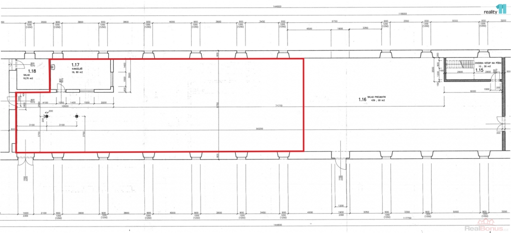
+ energie, Reality 11 Vám zprostředkují pronájem komerčního či skladového prostoru o užitné ploše cca 300 m s možností pronajmutí venkovní plochy o výměře až 2 000 m, nedaleko Kutné Hory v obci Nové Dvory.
V objektu je zavedena elektřina, samostatný elektroměr. V areálu momentálně funguje jeden autoservis, truhlárna a několik skladů. Vjezdová vrata na pozemek jsou dostatečně velká, projede i nákladní vozidlo. Venkovní plochu lze pronajmout za 33,-Kč za 1 m měsíčně.
Vchodové dveře do objektu jsou široká 160 cm a výška činí 190 cm, možnost vybudovat i rampu. Prostory jsou suché a budou připravené pro nového nájemníka.
Měsíční nájemné ve výší 22.400,-Kč + elektřina (přepis na nájemce), kauce ve výši 44.000,-Kč. Provizi RK neplatíte..
Volné od 1.1.2026.
Obec se nachází nedaleko zámku Kačina, vedle Kutné Hory. V případě prohlídky, či dalších dotazů, mě neváhejte kontaktovat. Ev. číslo: 23706. Energetický štítek: G (286 kWh/m2/rok).
| Cena: |
(za měsíc) 22 400,- Kč
(+ energie)
|
|---|
| Počet podlaží objektu | 2 |
|---|---|
| Druh objektu | cihlová |
| Stav objektu | dobrý |
| Energetická třída | G - Mimořádně nehospodárná |
| Vlastní pozemek | 4 869 m² |
| Umístění objektu | nová zástavba |
| Vybaveno | Nezařízeno |
| Počet míst k parkování | 5 |
| Zastavěná plocha | 1 797 m² |
| Užitná plocha | 300 m² |
| Druh prostor | Výrobní |
