| Číslo zakázky: | 25201 | ![]() Karta nemovitosti |
|---|---|---|
| Typ zakázky: | prodej |
Nabízíme k prodeji jedinečný rodinný dům z roku 1887 s kamennými základy, který spojuje kouzlo historické architektury s moderním bydlením a výhodnou investicí. Nachází se v samotném srdci Staré Boleslavi a z uzavřeného dvorku nabízí nádherný výhled na kostel Nanebevzetí Panny Marie.
Dům o dispozici 2+1 je ve výborném technickém stavu a nevyžaduje žádné úpravy.
Pro více informací se podívejte na webové stránky uvedené na fotografiích a videu.
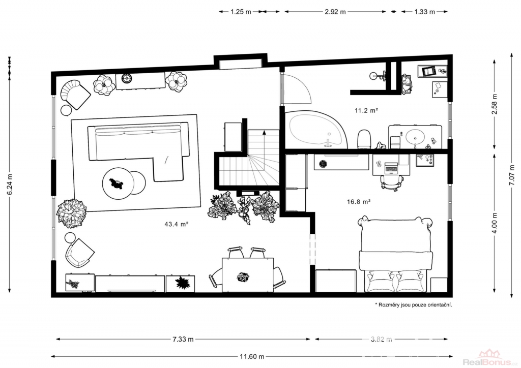
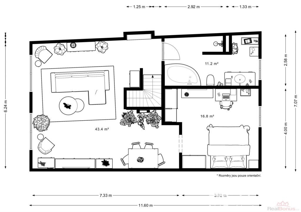
Přízemí
V přízemí se nachází vstupní chodba, technická místnost s prostorem pro pračku a sušičku, toaleta, špajz a kuchyně s jídelnou orientovaná do zahrádky.
Patro
Po dřevěném schodišti vystoupáte do patra, kde vás čeká prostorný obývací pokoj s krbovými kamny, ložnice a koupelna se sprchovým koutem i vanou, která právě prochází rekonstrukcí. Dům nabízí mnoho dispozičních možností ? díky rozvodům vody a odpadu v obývacím pokoji je možné vytvořit druhou kuchyni nebo prostor rozdělit na dvě samostatné bytové jednotky.
Komerční prostor
Součástí domu je také komerční prostor o velikosti 35 m2 s vlastním sociálním zázemím a skladem. V současnosti je pronajat stabilnímu nájemci ? optice ? s ročním výnosem 180 000 Kč. Prostor má samostatný vstup i elektroměr, což zajišťuje přehledné oddělení od obytné části.
Vytápění a ohřev vody zajišťuje kondenzační plynový kotel (stáří 6 let). Za domem se nachází uzavřená zahrádka s terasou a studnou, ideální pro klidné posezení a soukromí. Z terasy se otevírá jedinečný výhled na historické centrum města.
- dispozice 2+1 s možností úprav
- komerční prostor 35 m2, výnos 180 000 Kč/rok
- kondenzační plynový kotel (6 let)
- uzavřený dvorek, terasa, studna
- výhled na kostel Nanebevzetí Panny Marie
- centrum Staré Boleslavi
- dům nevyžaduje žádné úpravy
Lokalita domu je naprosto výjimečná ? v pěší vzdálenosti se nachází obchody, restaurace, školy, školky i autobusové nádraží. Okolí nabízí široké možnosti pro aktivní odpočinek, cyklostezky a procházky podél Labe. Do Prahy se pohodlně dostanete autem do 20 minut.
Tento dům je ideální volbou pro ty, kteří hledají stylové bydlení s duší minulosti, ale zároveň chtějí praktickou investici s jistým výnosem.
Možnost financování hypotečním úvěrem.
| Cena: |
(za nemovitost) 10 290 000,- Kč
(cena je uvedena včetně poplatků a odměny RK)
|
|---|
| Druh objektu | smíšená |
|---|---|
| Stav objektu | dobrý |
| Energetická třída | G - Mimořádně nehospodárná |
| Zastavěná plocha | 140 m² |
| Plocha parcely | 148 m² |
| Užitná plocha | 140 m² |
| Poloha objektu | řadový |




