| Číslo zakázky: | 25206 | ![]() Karta nemovitosti |
|---|---|---|
| Typ zakázky: | prodej |
Prodej rodinného domu s komerčním prostorem a výnosem 420 000,- Kč/rok ? Stará Boleslav
Nabízíme k prodeji jedinečný rodinný dům z roku 1887 s kamennými základy, nacházející se v historickém centru Staré Boleslavi. Tato nemovitost představuje výbornou investiční příležitost ? díky dvěma samostatným částem nabízí celkový roční výnos až 420 000,- Kč.
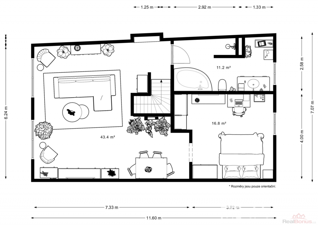
Komerční prostor (35 m2) se nachází v přízemí domu a má samostatný vstup, vlastní sociální zázemí, sklad a oddělené měření elektřiny. V současnosti je dlouhodobě pronajat stabilnímu nájemci ? optice ? s ročním výnosem 180 000 Kč. Prostor je v perfektním stavu, bez nutnosti úprav, a poskytuje jistý a bezstarostný příjem.
Obytná část domu o dispozici 2+1 nabízí možnost pohodlného bydlení nebo dalšího pronájmu s ročním výnosem 240 000,- Kč. V přízemí se nachází vstupní chodba, technická místnost s místem pro pračku a sušičku, špajz a kuchyně s jídelnou s výhledem do dvora. Po dřevěném schodišti vystoupáte do patra, kde je prostorný obývací pokoj s krbovými kamny, ložnice a koupelna se sprchovým koutem i vanou (aktuálně v rekonstrukci).
Dům nabízí mnoho dispozičních možností ? díky rozvodům vody a odpadu v obývacím pokoji je možné vytvořit druhou kuchyni a rozdělit tak prostor na dvě bytové jednotky. Vytápění a ohřev vody zajišťuje kondenzační plynový kotel (stáří 6 let).
Za domem se nachází uzavřený dvorek se zahrádkou, terasou a studnou, ideální pro relaxaci a klidné posezení. Z terasy se otevírá jedinečný výhled na kostel Nanebevzetí Panny Marie, který dotváří kouzelnou atmosféru celého místa.
Lokalita je naprosto výjimečná ? v pěší vzdálenosti jsou obchody, restaurace, školy, školky i zastávky MHD. Okolí láká k procházkám, jízdě na kole či posezení u Labe. Praha je dostupná autem do 20 minut.
Tento dům je skvělou volbou pro investory i pro ty, kteří hledají stylové bydlení s duší historie a jistým výnosem. Možnost financování hypotečním úvěrem.
Souhrn:
komerční prostor 35 m2 ? výnos 180 000 Kč/rok
dům se zahradou ? výnos 240 000 Kč/rok
celkový výnos: 420 000 Kč/rok
dispozice 2+1, možnost rozšíření
kondenzační plynový kotel (6 let)
terasa, studna, výhled na kostel
centrum Staré Boleslavi
Tento dům je ideální volbou pro ty, kteří hledají stylové bydlení s duší minulosti, ale zároveň chtějí praktickou investici s jistým výnosem.
Možnost financování hypotečním úvěrem.
| Cena: |
(za nemovitost) 10 290 000,- Kč
(cena je uvedena včetně poplatků a odměny RK)
|
|---|
| Druh objektu | smíšená |
|---|---|
| Stav objektu | dobrý |
| Energetická třída | G - Mimořádně nehospodárná |
| Užitná plocha | 115 m² |
| Plocha kanceláří | 115 m² |
| Druh prostor | Obchodní |
