| Číslo zakázky: | 653888 | ![]() Karta nemovitosti |
|---|---|---|
| Typ zakázky: | prodej |
cena včetně provize a právního servisu, Dumrealit.cz Vám zprostředkuje prodej prostorného rodinného domu, se zahradou, garáží a dílnou v obci Hořátev, vzdálené 4 km od Nymburka. Dům se nachází v klidné části obce, na konci slepé ulice. V blízkosti se nachází dostatek zeleně. V ulici je fotbalové hřiště k sportovnímu vyžití.
Jedná se o dům z roku 1974, dispozičně řešený jako 4+1. Je částečně podsklepený a kompletně vyklizený. Zastavěná plocha domu je 140 m, garáže a chlívků 51 m, dílny 31 m. Celková výměra pozemku včetně zastavěné plochy je 1249 m. Samotná zahrada má 1027 m.
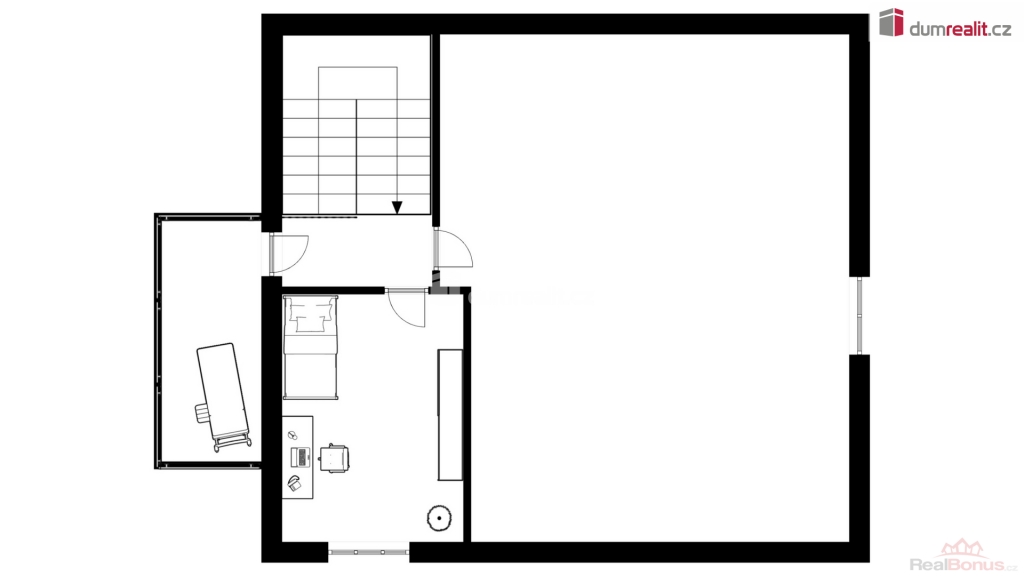
V 1.NP se nachází: vstupní veranda , samostatné WC , chodba, 3 pokoje, kuchyň, koupelna se sprchovým koutem, vanou a další toaletou, vstup do sklepa a do patra.
Ve 2.NP: schodiště s východem na terasu, jeden pokoj a prostorná půda, kde lze případně vybudovat další pokoj.
Dům je napojený na obecní vodovodní řád, kanalizaci a elektřinu. Na pozemku je k dispozici také studna. Vytápění je zajištěno kotlem na tuhá paliva , se zásobníkem na uhlí nebo dřevěné pelety. K dispozici 2 komíny. Okna jsou dřevěná, pouze v koupelně plastová. Na podlahách jsou v pokojích parkety, v koupelně a na chodbě dlažba.
Koupi této nemovitosti doporučuji nejen vzhledem k jejímu umístění, ale i možnosti rekonstrukce dle představ nového majitele a dům si tak přizpůsobit vlastním potřebám. V obci se nachází velmi dobrá občanská vybavenost - mateřská i základní škola (1.stupeň), obchod s potravinami a obecní úřad .
Výborné dopravní spojení do Prahy - po dálnici D11 (Praha Černý Most - 39 km). V případě zájmu o prohlídku, kontaktujte makléřku nemovitosti. Cena k jednání. Ev. číslo: 653274. Energetický štítek: G
| Cena: |
na vyžádání v RK (cena včetně provize a právního servisu) (včetně provize)
|
|---|
| Počet podlaží objektu | 2 |
|---|---|
| Celková podlahová plocha | 140 m² |
| Druh objektu | cihlová |
| Stav objektu | před rekonstrukcí |
| Energetická třída | G - Mimořádně nehospodárná |
| Vlastní pozemek | 1 249 m² |
| Umístění objektu | klidná část obce |
| Zastavěná plocha | 140 m² |
| Užitná plocha | 140 m² |
| Poloha objektu | samostatný |




