| Číslo zakázky: | 232636 | ![]() Karta nemovitosti |
|---|---|---|
| Typ zakázky: | pronájem |
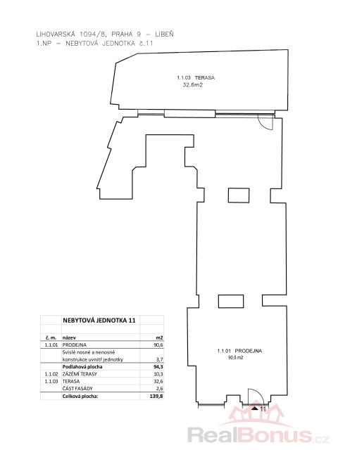
Pronájem prémiové komerční jednotky, celkové plochy 139,8 m2 s výrazným potenciálem stabilního výnosu i dlouhodobého zhodnocení, situované v dynamicky se rozvíjející části Prahy 9 - Libně.
Prostor o výměře 94 m2 je řešen jako tři na sebe navazující (průchozí) kancelářské místnosti, což umožňuje plynulý provoz, variabilní uspořádání a efektivní využití plochy. Jednotka je vhodná pro kanceláře, showroom, klientské centrum nebo obchodní provoz. Přímý kontakt s ulicí prostřednictvím výlohy a příprava na podsvícené reklamní označení na fasádě zajišťují vysokou viditelnost a silný obchodní potenciál.
Jednotka prošla kompletní rekonstrukcí v roce 2018, její velmi dobrý technický stav nevyžaduje žádné další investice. Každá kancelář vybavena samostatnou klimatizací, prostor disponuje kompletním sociálním zázemím v nadstandardním provedení a je plně zabezpečen kamerovým systémem v interiéru i exteriéru.
Významnou přidanou hodnotu zahrnuje soukromá terasa o velikosti 33 m2, která zvyšuje užitnou hodnotu jednotky i její atraktivitu pro bonitní nájemce.
Lokalita Praha 9 - Libeň patří dlouhodobě mezi žádané městské části s vysokou poptávkou po komerčních plochách, s výbornou dostupností MHD a rychlým napojením na hlavní dopravní tahy.
Ideální volba pro investory, kteří hledají:
• okamžitou možnost pronájmu
• stabilní cash flow
• ochranu kapitálu v kvalitní nemovitosti
• potenciál růstu hodnoty v čase
| Cena: |
(za měsíc) 45 000,- Kč
(Kauce ve výši 45.000,- + provize RK 45.000,-)
|
|---|
| Dispozice bytu | jiný |
|---|---|
| Číslo podlaží v domě | 1 |
| Celková podlahová plocha | 139 m² |
| Druh objektu | cihlová |
| Stav objektu | po rekonstrukci |
| Energetická třída | G - Mimořádně nehospodárná |
| Vlastnictví | osobní |
| Plocha teras | 45 m² |
| Vybavení | terasa |
| Telekomunikace | Telefon Internet Vedení PC sítě |
| Ostatní rozvody | Kabelové rozvody |
| Vybaveno | Částečně zařízeno |
| Sociální zařízení | ano |
| Užitná plocha | 94 m² |
| Plocha kanceláří | 94 m² |
| Počet kanceláří | 3 |
| Druh prostor | Obchodní |
| K dispozici od | 05.02.2026 |
