| Číslo zakázky: | XA-456 | ![]() Karta nemovitosti |
|---|---|---|
| Typ zakázky: | prodej |
Dobrý den, hledáte investiční nemovitost, ze které můžete vytvořit projekt domu o 3 bytech s předzahrádkami a vlastním parkováním? Nebo jen hledáte větší pozemek pro projekt svého rodinného domu? Pokud umíte najít a vytěžit potenciál u nemovitosti, mohla by Vás zaujmout tato naše nová nabídka.
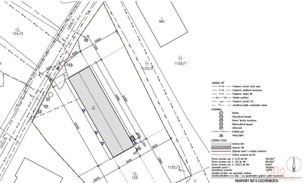
Jedná se o prodej rodinného domu, který se nachází na pozemku o celkové výměře 1.191 m2, v klidné části obce Lochenice, 15 minut jízdy autem od centra Hradce Králové.
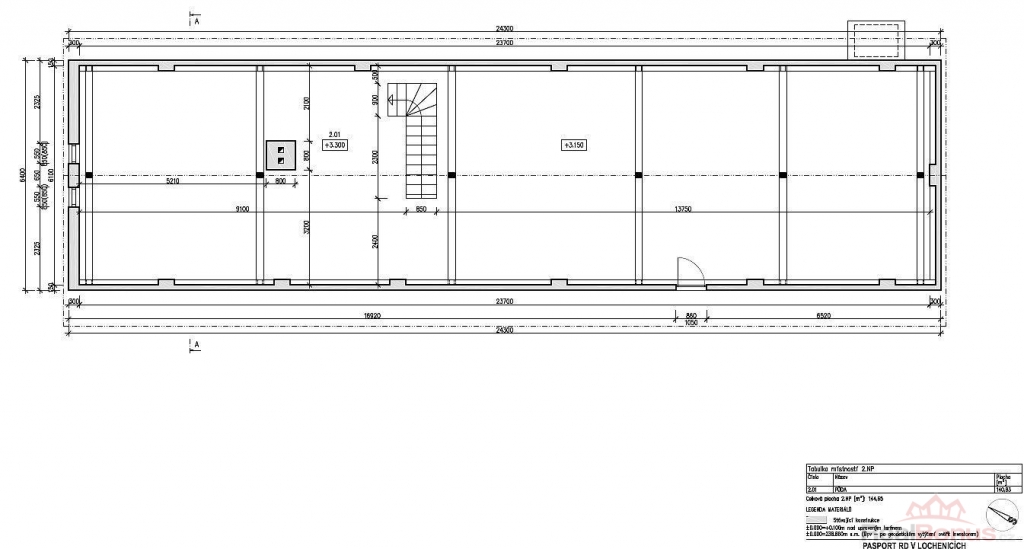
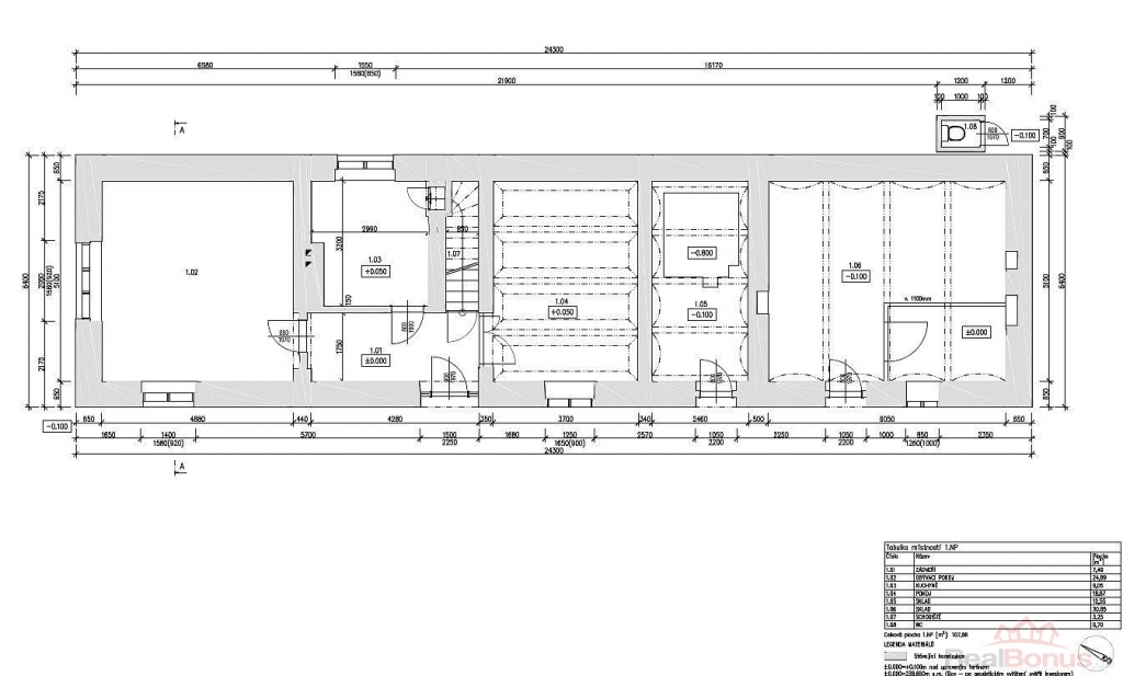
Dům je určen k celkové rekonstrukci, případně i demolici s využitím pozemku pro další plány. Jeho zastavěná plocha činí 156 m2. Byl postaven pravděpodobně již v 19. století a od té doby došlo k přístavbám jihovýchodním směrem, ale dům je již od poloviny 20. století bez výraznějším změn. IS: elektřina zavedena, předpřipravená kanalizační přípojka, předpřipravená plynová přípojka. Na pozemku se nachází vlastní studna. V územním plánu je celý pozemek zahrnut do území smíšeného obytného.
A jak bylo uvedeno výše, nabídka je vhodná pro zájemce, který umí najít a vytěžit potenciál daného místa nebo stavby. Stávající půdorys domu je vhodný pro vybudování domu o 3 bytech, každý s vlastním parkováním a menší zahradou.
Děkuji za pozornost a budu se těšit na komunikaci s Vámi. Václav Růžička, realitní specialista.
Prodávající si vyhrazuje právo na výběr kupujícího dle vlastní úvahy (způsob úhrady kupní ceny, serióznost jednání apod.).
| Cena: |
(za nemovitost) 6 490 000,- Kč
(cena včetně služeb RK)
|
|---|
| Číslo podlaží v domě | 1 |
|---|---|
| Počet podlaží objektu | 1 |
| Druh objektu | smíšená |
| Stav objektu | před rekonstrukcí |
| Energetická třída | G - Mimořádně nehospodárná |
| Vlastní pozemek | 1 191 m² |
| Umístění objektu | klidná část obce |
| Vybaveno | Částečně zařízeno |
| Topení | Lokální - tuhá paliva |
| Zastavěná plocha | 156 m² |
| Plocha parcely | 1 191 m² |
| Plocha zahrady | 1 035 m² |
| Druh stavby | rodinný dům, rekreační chalupa, rekreační pozemek |
| Poloha objektu | samostatný |




