| Číslo zakázky: | 52421 | ![]() Karta nemovitosti |
|---|---|---|
| Typ zakázky: | prodej |
Prodej novostavby rodinného domu 5+kk s garáží a zahradou ve Vlasaticích, okres Brno ? venkov.
Jedná se o koncový dům v klidné ulici s výhledem na místní zámek, kolaudovaný v dubnu 2023 s možností parkování pro další 3 auta na vlastním pozemku před domem.
Celková plocha pozemku 818 m2, zastavěná plocha 112 m2, zahrada 670 m2, užitná plocha domu 187 m2.
Dům je zděný (ytong) se sedlovou střechou, nepodsklepený, zateplený, plastová okna trojskla, střešní dřevěná - poplastovaná okna VELUX,
elektrický kotel a zásobník na ohřev vody, podlahové vodní topení, v obývacím pokoji krbová kamna s rozvodem teplého vzduchu do jednotlivých pokojů v patře s možností následné regulace pro každý pokoj, podlahové topení se také reguluje v každé místnosti elektronickým termostatem.
Přichystán kompletní rozvod vč.rozvaděče pro fotovoltaiku s vyvedením prostupu až na střechu domu.
Do domu přiveden optický kabel pro internet, rozvod internetu po celém domě.
Zabezpečovací systém + rozvod pro kamerový systém monitorující okolí domu.
Dům není zcela dokončen. Konečný design jsme ponechali na výběru nového majitele.
V domě chybí:
finální povrch podlah (nyní broušený anhydrid), obklady, sanita (vana, umyvadlo, WC), parapety, zárubně, interiérové dveře.
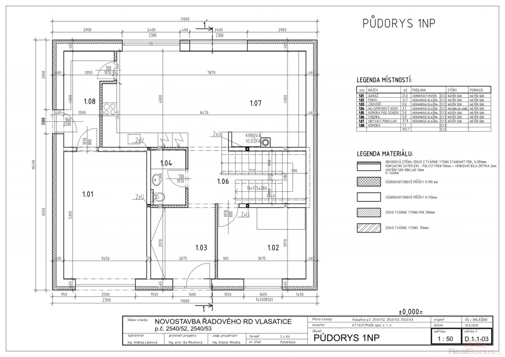
Dispozice:
Přízemí (103,7 m2): garáž 21 m2 s umyvadlem, odvětráním, alarm pomocí magnetu na dveřích, zádveří 9 m2, pokoj 12,7 m2, WC se sprchovým koutem a umyvadlem 3,1 m2, komora ? technická místnost pod schody 5 m2, chodba 5,8 m2, obývací pokoj s kuchyňským koutem 37,8 m2, komora 7,1 m2 přístupná z garáže, kuchyně a zahrady se samostatným rozvodem elektřiny pro zahradu.
1.patro (83,6 m2): chodba 7,3 m2, koupelna 11,9 m2 ? připraveno na: vanu, sprchovým kout (box), 2 umyvadla, vývod na pračku a sušičku, samostatné WC s umyvadlem 2,1 m2, 2x pokoj 23 m2, 20,7 m2 se střešními okny a klasickým oknem ve štítové zdi a 1x pokoj 18,5 m2 pouze se střešními okny.
Veškeré inženýrské sítě ? elektřina 220/380V, obecní vodovod, splašková i dešťová kanalizace. Dešťová voda je svedena do nádrže na zahradě (možnost zalévání, čerpadlo).
Zahrada je do tvaru L, vykolíkovaná, neoplocená, zpevněný terén na terasu, vyvedena voda i elektřina, na celém pozemku navezena ornice.
K dispozici po dohodě (ihned), není zatížen žádným zástavním právem, možnost financovat hypotečním úvěrem. V případě koupě domu na firmu, možný odpočet DPH.
Dostupnost z Vlasatic do Brna je 20 min autem nebo 30 min autobusem a 10 min od Městys Pohořelice.
Jsou i příjemným místem pro odpočinek a relax, 8 km od Novomlýnských nádrží.
V obci je veškerá občanská vybavenost - obecní úřad, mateřská školka, základní škola, pošta, restaurace, cukrárna, obchod COOP.
| Cena: | (za nemovitost) 9 900 000,- Kč |
|---|
| Počet podlaží objektu | 2 |
|---|---|
| Druh objektu | cihlová |
| Stav objektu | novostavba |
| Energetická třída | G - Mimořádně nehospodárná |
| Vybavení | zahrada |
| Rok kolaudace | 2 023 |
| Parkování | garáž |
| Počet míst k parkování | 3 |
| Zastavěná plocha | 112 m² |
| Plocha parcely | 818 m² |
| Ostatní | Garáž Parkoviště |
| Užitná plocha | 187 m² |
| Plocha zahrady | 670 m² |
| Poloha objektu | rohový |




