| Číslo zakázky: | 3711691 | ![]() Karta nemovitosti |
|---|---|---|
| Typ zakázky: | pronájem |
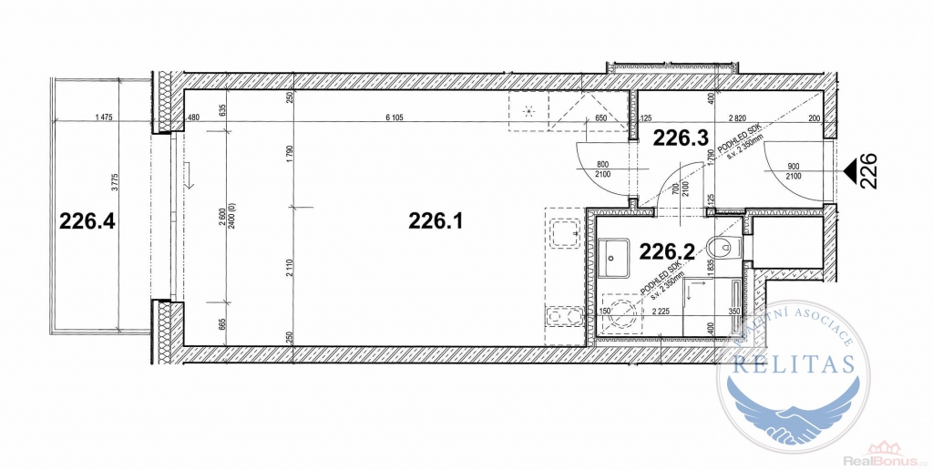
Exkluzivně zprostředkuji pronájem zcela nového, elegantně zařízeného bytu 1+kk, o vnitřní ploše 36,5 m + 6 m terasa v 2. patře novostavby z roku 2024 v Šrámkové ulici, Praha 3. Byt se sestává z předsíně, obývacího pokoje s kuchyňskou linkou s indukční varnou deskou a přístupem na terasu, koupelny se sprchovým koutem a toaletou. Okna jsou vybavena elektrickými vnějšími žaluziemi. V bytě je klimatizace s rekuperací, v celém bytě je podlahové topení. Byt je vybaven bezpečnostními protipožárními dveřmi a alarmem. V přízemí domu lze využívat společnou kočárkárnu/kolárnu. Byt je nově vybaven elegantním nábytkem. V kuchyni je myčka nádobí, horkovzdušná trouba, mikrovlnná trouba a indukční varná deska.
Internet lze sjednat od Vodafone, T-Mobile i O2. Záloha za služby činí 3 300 Kč/měsíc pro první osobu, druhá osoba + 500 Kč. Elektroměr (odhadovaná spotřeba 1 200 Kč/měsíc) bude převeden na nájemce. Budova má vynikající energetický průkaz třídy "B - velmi úsporná". Přímo před domem se nachází autobusová zastávka s dostupností na stanici metra =A= Želivského 2 min.
Při uzavření nájemní smlouvy je třeba uhradit vratnou kauci ve dvojnásobku nájmu a odměnu realitní kanceláře ve výši nájmu. Nájemní smlouva je uzavírána na jeden rok, v případě oboustranné spokojenosti je možné ji každý rok prodlužovat. Byt je ihned k dispozici, vhledem k výjimečnosti nabídky vřele doporučuji prohlídku. Do not hesitate to contact me if you are English speaker.
| Cena: |
(za měsíc) 23 800,- Kč
(měsíční záloha za služby 3 300 Kč, vratná kauce 50 000 Kč, odměna zprostředkovatele 23 800 Kč) (bez poplatků) (+ provize RK) (včetně právního servisu)
|
|---|
| Dispozice bytu | 1+kk |
|---|---|
| Číslo podlaží v domě | 3 |
| Počet podlaží objektu | 15 |
| Celková podlahová plocha | 43 m² |
| Druh objektu | smíšená |
| Stav objektu | novostavba |
| Energetická třída | B - Velmi úsporná |
| Vlastnictví | osobní |
| Počet podlaží pod zemí | 1 |
| Plocha teras | 6 m² |
| Bezbariérový byt | ano |
| Umístění objektu | klidná část obce |
| Rok kolaudace | 2 024 |
| Užitná plocha | 37 m² |
| Charakter okolní zástavby | obytná |




