| Číslo zakázky: | 28 | ![]() Karta nemovitosti |
|---|---|---|
| Typ zakázky: | prodej |
Nabízíme k prodeji kompletně připravený stavební areál v obci Borek u Rokycan, který je ideální pro spojení rodinného bydlení s podnikáním.
Soubor pozemků o celkové výměře cca 2 253 m disponuje platným stavebním povolením, demoličním povolením, kompletní projektovou dokumentací a všemi přípojkami tedy vše je připraveno k okamžité výstavbě.
Areál se nachází v klidné části obce, s výbornou dostupností do Rokycan i na dálnici D5.
Hlavní stavba rodinný dům
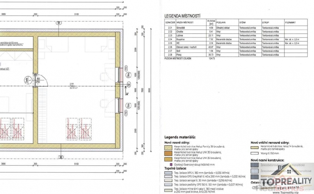
Součástí prodeje je projektová dokumentace na moderní rodinný dům:
Zastavěná plocha: 174 m
Užitná plocha: 253,8 m
Obestavěný prostor: 1 328 m
Energetické parametry: příkon 1630 kW, hlavní jistič 3×25 A
Vyřešený systém nakládání s dešťovou vodou
Dům navržen pro komfortní celoroční bydlení
Hlavní budova pro podnikání
Areál obsahuje také projekt doplňkové stavby vhodné pro podnikání, dílnu či provozovnu:
Zastavěná plocha: 308,5 m
Užitná plocha: 475,87 m
Schválený příkon: 3×160 A vhodné i pro technologické provozy
Možné využití:
dílna
sklad
garáže
provozovna
servisní zázemí
Ideální kombinace bydlení a podnikání na jednom místě
Dokumentace a povolení
Areál má kompletně zajištěné veškeré podklady:
Platné stavební povolení
Platné demoliční povolení
Kompletní projektová dokumentace RD i doplňkové stavby
Hydrogeologické posouzení (vsakování srážkových vod)
Hygienické radonové měření pozemku
Vyřešené přípojky: voda, kanalizace, elektřina, možnost plynu
Možnost okamžitého zahájení stavby bez jakýchkoliv průtahů
Pozemky
Celková plocha pozemků činí cca 2 253 m:
st. 56 978 m
p.č. 78/3 921 m
p.č. 75/2 354 m
Výhody této nabídky
Naprosto kompletně připraveno na výstavbu
Velké možnosti podnikání přímo u domu
Špičkově dimenzovaná elektro přípojka 3×160 A
Všechny posudky a dokumentace hotové
Možnost okamžitého převodu
Klidná lokalita s perfektním spojením
Shrnutí
Jedinečná příležitost pro investora, rodinu i podnikatele.
Areál je připraven bez jediného kroku navíc stačí převzít a začít stavět.
| Cena: | (za nemovitost) 9 950 000,- Kč |
|---|
| Číslo podlaží v domě | 2 |
|---|---|
| Počet podlaží objektu | 1 |
| Druh objektu | cihlová |
| Umístění objektu | klidná část obce |
| Vybaveno | Částečně zařízeno |
| Topení | Lokální - plynové |
| Elektřina | 230 V |
| Plyn | Zaveden |
| Účel budovy | Výroba |
| Inženýrské sítě | Vodovod Plyn Elektřina |
| Druh stavby | budova/y, hala/y |
| Poloha objektu | v bloku |
| Druh prostor | Výrobní |
