| Číslo zakázky: | 26-07-004 | ![]() Karta nemovitosti |
|---|---|---|
| Typ zakázky: | prodej |
Představte si nemovitost, kde vaši nájemníci denně těží z tisíců potenciálních zákazníků. Výlohy obchodů v přízemí jsou umístěny přímo před tramvajovou zastávkou každý cestující má váš objekt přímo před očima. To není jen adresa, to je marketingová výhoda zabudovaná do lokality.
Co vás čeká?
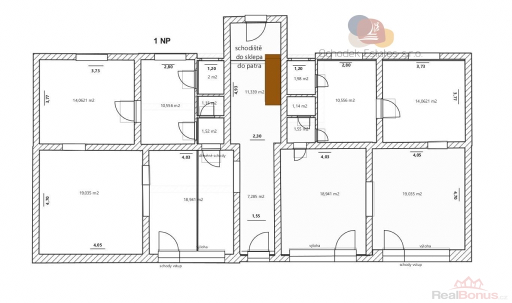
- Přízemí: Dva komerční prostory, každý 100 m2 s velkými výlohami, původně čtyři menší jednotky. Maximální viditelnost z tramvaje.
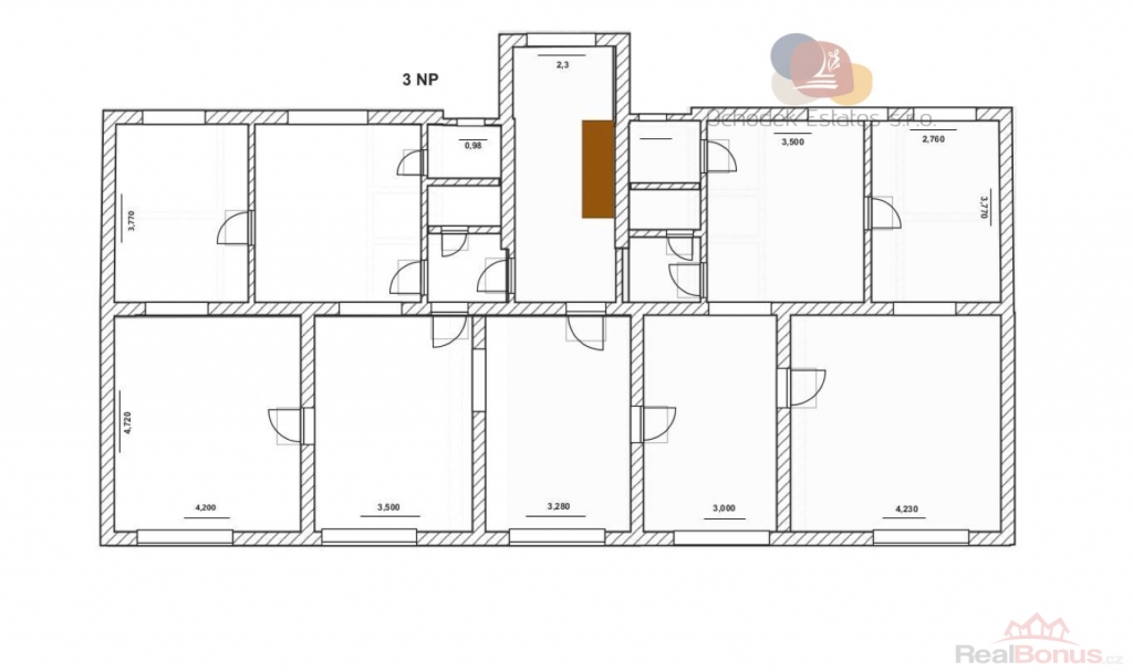
- Patra: Světlé kancelářské prostory s vysokými stropy a zátěžovými koberci. Ideální pro kanceláře či kreativní studia. 2 nebo 3 kanceláře na každém poschodí.
- Podkroví: Pronajatý nebytový prostor a půda.
- Sklep: Historicky vinárna s vlastní koupelnou, WC a vchodem ze dvora i ulice. Potenciál pro sklady, archiv nebo návrat k původnímu účelu.
- Parkování: 12 parkovacích míst náležejících k domu.
Všechny prostory jsou momentálně pronajaty. Nemovitost je bez věcných břemen a virtuálních sídel. Objekt je prohlášením vlastníka katastrálně rozdělen na jednotky, takže je zde možnost budoucího prodeje i po jednotkách.
Technický stav
- rekonstrukce probíhaly průběžně podle uvolněných prostor
- střecha kompletně ošetřena a oplechována nikde nezatéká
- okna moderní dvojskla v plastu
- elektřina v mědi s hodinami pro každou jednotku zvlášť
- voda v plastových rozvodech
- topení je elektrické a masivní zdi nevyžadují zateplení
Toto není jen dům. Je to funkční investice s dosahem, kterou konkurence závidí!
Pozn. : Financování pomůžeme zařídit. Energetický štítek se v současné době zpracovává, prozatím uvádíme zákonné "G". Uvedená kupní cena nezahrnuje zprostředkovatelský poplatek ve výši 2%+DPH z ujednané ceny.
| Cena: | (za nemovitost) 21 900 000,- Kč |
|---|
| Počet podlaží objektu | 4 |
|---|---|
| Celková podlahová plocha | 470 m² |
| Druh objektu | cihlová |
| Stav objektu | velmi dobrý |
| Energetická třída | G - Mimořádně nehospodárná |
| Počet podlaží pod zemí | 1 |
| Umístění objektu | centrum |
| Odpad | Městská kanalizace |
| Plyn | Zaveden |
| Počet míst k parkování | 12 |
| Zastavěná plocha | 210 m² |
| Užitná plocha | 470 m² |
