| Číslo zakázky: | XA-473 | ![]() Karta nemovitosti |
|---|---|---|
| Typ zakázky: | prodej |
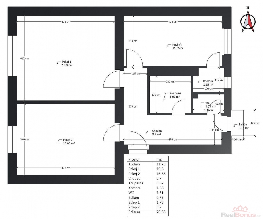
Dobrý den, právě pro Vás připravujeme k prodeji byt o dispozici 2+1 a celkové výměře podle dokumentace 65,62 m2, který se nachází ve zděném bytovém domě v Pardubicích na Zeleném Předměstí.
Předmětný byt se nachází v 2.NP zděného bytového domu bez výtahu o 15 bytech. Orientace: východ, západ. V minulosti prošel rekonstrukcí, která je již z určitého pohledu morálně zastaralá. Nicméně byt je v dobrém stavu, plně funkční, ihned obyvatelný. Vytápění a ohřev vody je řešeno prostřednictvím vlastního ústředního kombinovaného plynového kotle.
Děkuji, Václav Růžička, realitní specialista.
Prodávající si vyhrazuje právo na výběr kupujícího dle vlastní úvahy (způsob úhrady kupní ceny, serióznost jednání apod.).
| Cena: |
(za nemovitost) 5 150 000,- Kč
(cena včetně služeb RK)
|
|---|
| Dispozice bytu | 2+1 |
|---|---|
| Číslo podlaží v domě | 2 |
| Počet podlaží objektu | 3 |
| Druh objektu | cihlová |
| Stav objektu | dobrý |
| Energetická třída | F - Velmi nehospodárná |
| Vlastnictví | osobní |
| Druh bytu | v nájemním domě (činžovním) |
| Počet podlaží pod zemí | 1 |
| Vybavení | balkon sklep |
| Umístění objektu | klidná část obce |
| Vybaveno | Částečně zařízeno |
| Topení | Ústřední - plynové |
| Druh stavby | budova/y, hala/y |
| Poloha objektu | řadový |




