
| Číslo zakázky: | 925 | ![]() Karta nemovitosti |
|---|---|---|
| Typ zakázky: | prodej |
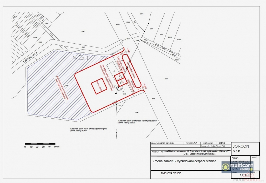
V exkluzivním zastoupení vlastníků si dovolujeme nabídnout pozemek, sousedící se silnicí Jihlava - Znojmo, u Moravských Budějovic, vhodný ke stavbě areálu motorestu, hotelu, čerpací stanice a dalších staveb typu např. Rohlenka. Pozemek se rozprostírá na pozemcích dvou katastrálních území a v minulosti zde byla obalovna, což skýtá výhodu přítomnosti všech inženýrských sítí v naddimenzované podobě, v areálu i samostatný transformátor, je zde možnost vybudování parkoviště pro cca 70 kamionů, tudíž by zde mohla vzniknout i odpočívka, tolik na této trase potřebná. Aktuálně stále v platnosti záměr vybudování čerpací stanice, i se studií, navíc s restaurací a již zmíněným parkovištěm pro kamiony na zpevněné ploše, včetně povolení ŘSD na jimi vybudovaný odbočovací pruh v délce 130 m. Plocha pozemku z větší části zpevněná, zbytky areálu disponují i mostní váhou, zbytkem stavby u ní, oploceno. Více informací podáme vážným zájemcům osobně a kvalifikovaně. Příležitost pro investory, kteří vědí, jaká je dopravní situace na trase Praha-Vídeň a zejména situace v oblasti zaparkování a odstavení vozidel. Nabízíme jim areál, přímo sousedící s touto frekventovanou silnicí, s bohatými možnostmi, jaké pozemek skýtá.
| Cena: |
na vyžádání v RK (info v RK)
|
|---|
| Číslo podlaží v domě | 1 |
|---|---|
| Vlastní pozemek | 16 208 m² |
| Elektřina | 230 V |
| Plyn | Zaveden |
| Plocha parcely | 16 208 m² |
| Druh pozemku | pro komerční výstavbu |
| Inženýrské sítě | Vodovod Kanalizace Plyn Elektřina |
