| Číslo zakázky: | 974030 | ![]() Karta nemovitosti |
|---|---|---|
| Typ zakázky: | pronájem |
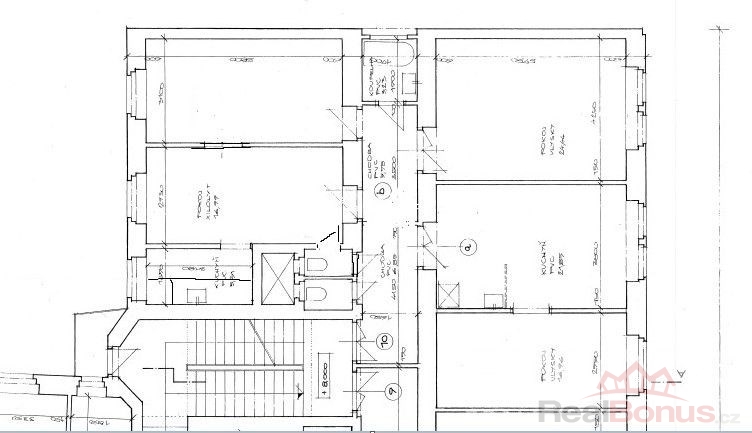
Nabízíme k pronájmu prostorný a světlý byt 5+kk, o celkové podlahové ploše 120m2, který prošel před pár lety rekonstrukcí. Byt se nachází ve 3 NP, s výtahem do mezipatra domu. Skládá se z velké vstupní předsíně (chodby), která je středem bytu, a z které se viz přiložený půdorys vstupuje do obytných místností. Dispozice celkem pěti prostorných pokojů, z toho tři jsou samostatné a neprůchozí (vhodné pro spolubydlení) a dva jsou průchozí (obývací pokoj) a pokoj užívaný historicky jako velká jídelna, který je průchozí do menšího prostoru kuchyně, která je vybavená menší kuchyňskou linkou (kombinovaný sporák, plynová varná deska, místo pro případnou myčku nádobí. Koupelna s vanou, místem pro pračku a vlastním plynovým etážovým kotlem, dále 2x samostatné WC. Podlahy jsou parketové a pvc. Lokalita pražských Vinohrad nabízí perfektní bydlení s s kompletní občanskou vybaveností ( v blízkosti tramvajová zastávka a pěší chůzí dostupné metro Náměstí míru), nedaleko vstupu do Riegrových sadů. Prohlídky možné po domluvě s makléřem. Byte je volný k nastěhování od 1. března 2026. Z důvodu absence PENB uvádíme energetickou třídu G, údaj není relevantní.
| Cena: |
(za měsíc) 35 000,- Kč
(+ poplatky 850,Kč/os. + elektřina, plyn.)
|
|---|
| Dispozice bytu | 5+kk |
|---|---|
| Číslo podlaží v domě | 3 |
| Počet podlaží objektu | 5 |
| Celková podlahová plocha | 120 m² |
| Druh objektu | cihlová |
| Stav objektu | po rekonstrukci |
| Energetická třída | G - Mimořádně nehospodárná |
| Vlastnictví | osobní |
| Vybaveno | Částečně zařízeno |
| Odpad | Městská kanalizace |
| Plyn | Zaveden |
| Užitná plocha | 120 m² |




