| Číslo zakázky: | 1N25002-D | ![]() Karta nemovitosti |
|---|---|---|
| Typ zakázky: | prodej |
Nabízíme Vám novou nemovitost na prodej.
Jedná se výstavbu přízemních bytové jednotky na klíč.
Byt se nachází ve Vracově, leží v rovinaté krajině mezi Strážnicí a Kyjovem v okrese Hodonín v Jihomoravském kraji, ležící osm kilometrů jihovýchodně od Kyjova, ve vinařské oblasti Slovácka.
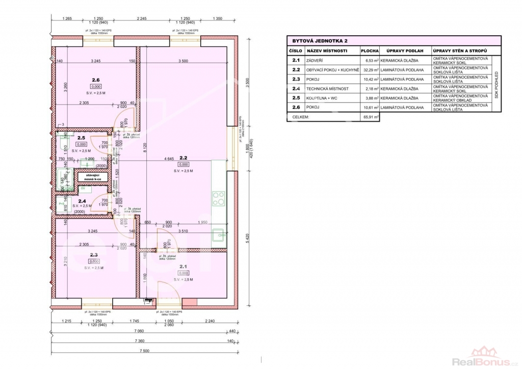
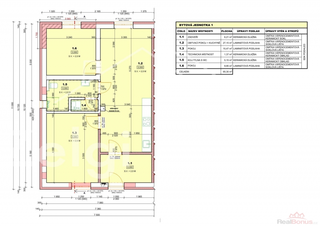
Tento byt vystavený z materiálů cihel a ytongu, mají dispozici 3+kk a celkovou plochu 65 m2. K nemovitosti se vyřizuje i pozemek vhodný k výstavbě pergoly či posezení.
Jelikož se jedná o bytový dům tak bude nový majitel vlastnit podíl na budově samotné.
Rozložení a dispozice nemovitosti jsou popsány ve vizualizacích a půdorysech:
Byt sestává ze vstupní chodby, ze které je vstup do obývacího pokoje s kuchyňským koutem, koupelny se sprchovým koutem a wc, technické místnosti a 2 prostorných pokojů situovaných jako ložnice.
Konkrétnější představu a inspiraci pro vybavení nemovitosti lze získat z vizualizací.
Energetická náročnost budovy je v kategorii D.
Byt je možné doupravit podle představ klienta, stejně tak i úprava pozemku na míru.
K bytu náleží i dostatek prostoru k zaparkování i 4 aut.
Byt je k nastěhování od 1.1.2026.
Byt se nachází v klidné lokalitě s dobrou dostupností, veřejnou příměstskou dopravou a blízkostí veškeré občanské vybavenosti jako jsou restaurace, školka i škola, kulturní zařízení a obecní úřad.
S financováním Vám rádi pomůžeme.
Pro více informací či domluvení schůzky nás kontaktujte.
| Cena: |
(za nemovitost) 4 725 000,- Kč
(cena k jednání)
|
|---|
| Dispozice bytu | 3+kk |
|---|---|
| Číslo podlaží v domě | 1 |
| Počet podlaží objektu | 1 |
| Celková podlahová plocha | 65 m² |
| Druh objektu | smíšená |
| Stav objektu | novostavba |
| Energetická třída | D - Méně úsporná |
| Vlastnictví | osobní |
| Umístění objektu | klidná část obce |
| Počet míst k parkování | 4 |
| Užitná plocha | 65 m² |
| Komunikace | asfaltová |
| Charakter okolní zástavby | obytná |




