| Číslo zakázky: | 19375 | ![]() Karta nemovitosti |
|---|---|---|
| Typ zakázky: | prodej |
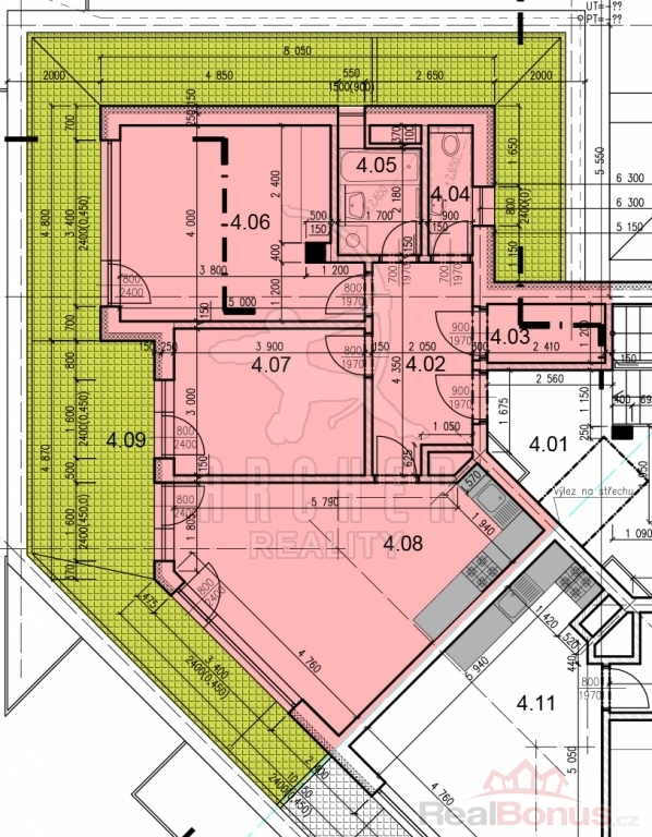
Nabízíme k prodeji byt 3+kk/L/S v OV, 123 m2 (50m2 lodžie, 2m2 sklep), garáž a venkovní parkovací místo, Praha 4 - Komořany, ul. Okružní. Stavba zahájena. Magické místo s výhledem do zeleně a na prvorepublikovou zástavbu starých Komořan, kde bude stát nový a moderní viladům od prověřeného developera - komfortní bydlení, klidná lokalita a jistá rozložená investice na necelé dva roky.
Prezentace obsahuje vizualizaci.
Byt č.15 se nachází v 4.NP, k bytu náleží lodžie.
Viladům Okružní je vybaven kvalitním a moderním standardem. Koupelny obsahují sprchové vaničky z litého mramoru Concept 100 nebo vany Kaldewei Eurowa, doplněné bateriemi Grohe BauLoop a sprchovými sety Hansgrohe Croma 100. Součástí vybavení jsou umyvadla Concept Cube s bateriemi Grohe, koupelnové radiátory Concept 100 a závěsné WC Concept Cube s duraplastovým sedátkem a systémem TECE Box UNI s ovládací deskou TECE Loop v lesklém chromu.
Povrchy koupelen a toalet tvoří keramické obklady a dlažby La Ceramica ICON v odstínech black a silver, v chodbách je použita dlažba La Ceramica Factory grey 60×60 cm. Stěny jsou malovány bílou barvou. Interiérové dveře SOLODOR jsou bílé s dřevěnými obložkovými zárubněmi, vstupní dveře jsou bezpečnostní v bílé barvě a okna jsou dřevěná s trojsklem typu EURO. Vytápění celého domu a ohřev vody zajistí úsporná plynová kotelna pro všech 16 bytů.
Financování - při podpisu SOSBK složení 10%, po zapsání rozestavěné jednotky do KN 20% a po kolaudaci a podpisu KS 70% (kolaudace 4.čtvrtletí 2027).
Lokalita Praha 12, konkrétně ulice Okružní, nabízí ideální kombinaci klidného bydlení a skvělé dostupnosti do centra Prahy. Tato část města je oblíbená pro svou rodinnou atmosféru a bohatou občanskou vybavenost, která zahrnuje školy, školky, obchody i zdravotnická zařízení.
Milovníci přírody ocení blízkost parků a přírodních rezervací, kde lze relaxovat nebo sportovat. Výhodou je také výborná dopravní infrastruktura s rychlým spojením MHD i autem, díky které jste během pár minut v centru.(Plánované prodloužení tramvajové trati). Praha 12 je dynamicky se rozvíjející oblast, která nabízí komfortní a bezpečné prostředí pro moderní bydlení i perspektivní investici.
Na tuto nemovitost máme pro vás připravené výhodné financování.
| Cena: |
(za nemovitost) 14 553 583,- Kč
(včetně provize)
|
|---|
| Dispozice bytu | 3+kk |
|---|---|
| Číslo podlaží v domě | 4 |
| Počet podlaží objektu | 4 |
| Celková podlahová plocha | 123 m² |
| Druh objektu | skeletová |
| Stav objektu | novostavba |
| Energetická třída | B - Velmi úsporná |
| Vlastnictví | osobní |
| Počet podlaží pod zemí | 1 |
| Bezbariérový byt | ano |
| Umístění objektu | klidná část obce |
| Vybaveno | Částečně zařízeno |
| Topení | Lokální - plynové |
| Odpad | Městská kanalizace |
| Rok kolaudace | 2 027 |
| Užitná plocha | 123 m² |




