| Číslo zakázky: | 02042 | ![]() Karta nemovitosti |
|---|---|---|
| Typ zakázky: | pronájem |
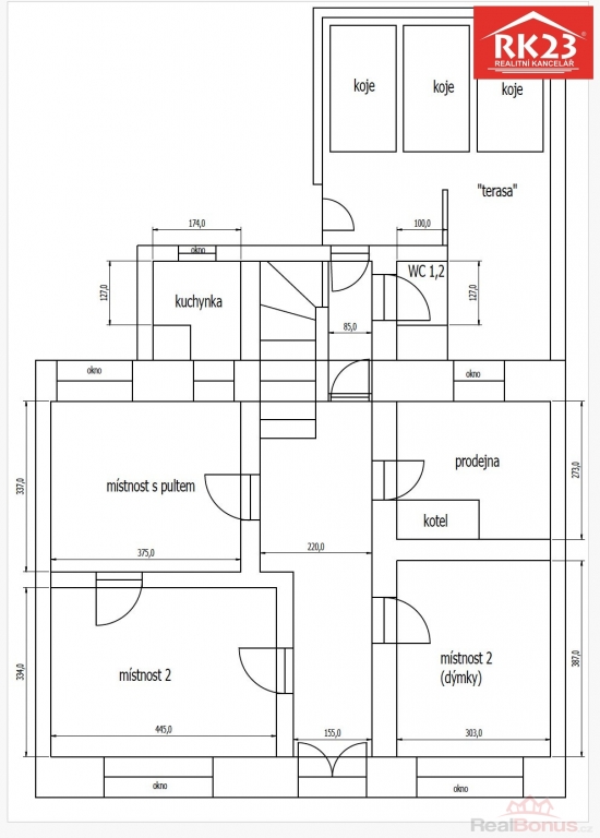
Nabízíme útulné prostory o celkové vnitřní ploše 80 m2, k tomu zastřešená venkovní terasa a toalety v atraktivní lokalitě Pražská, Mimoň.
Prostory se skládají z:
komorního soukromého prostoru vhodného například pro menší kancelář nebo relaxační zónu,
světlého hlavního prostoru s křesílky a židlemi, ideální pro kreativní či společenské využití,
herny pro děti, kterou lze využít jako kavárnu, kreativní obchod, prostor pro jógu, cvičení s dětmi nebo jiné aktivity.
Součástí je také zastřešená venkovní terasa, která prostor doplňuje a nabízí možnosti využití venku.
Vybavení je zahrnuto v ceně pronájmu a k dispozici jsou 4 parkovací místa přímo u budovy.
Finanční podmínky:
Nájem: 15 000 Kč/měsíc + 1 měsíc dopředu
Kauce: 15 000 Kč
Elektrika: 2 500 Kč ? odpočet podle spotřeby
Voda: zdarma
Vytápění: 2 500 Kč ? odpočet podle spotřeby
Provize RK: 15 000 Kč
Prostory nabízejí útulnou, světlou a flexibilní atmosféru, ideální pro podnikatele, kteří hledají místo pro kavárnu, kreativní ateliér, workshopy, cvičení s dětmi nebo jiné originální využití.
| Cena: |
(za měsíc) 15 000,- Kč
(včetně DPH, bez poplatků, + provize RK, včetně právního servisu)
|
|---|
| Číslo podlaží v domě | 1 |
|---|---|
| Počet podlaží objektu | 2 |
| Druh objektu | smíšená |
| Stav objektu | velmi dobrý |
| Energetická třída | G - Mimořádně nehospodárná |
| Bezbariérový byt | ano |
| Umístění objektu | centrum |
| Ostatní rozvody | Ostatní rozvody |
| Topení | Ústřední - plynové |
| Doprava | silnice MHD autobus |
| Voda | dálkový vodovod |
| Odpad | Městská kanalizace |
| Počet míst k parkování | 4 |
| Účel budovy | Jiný |
| Ostatní | Bezbariérový přístup Parkoviště |
| Užitná plocha | 80 m² |
| Komunikace | asfaltová |
| Inženýrské sítě | Vodovod Kanalizace |
| Charakter okolní zástavby | obchodní a obytná |
| Poloha objektu | řadový |
