| Číslo zakázky: | 2026008 | ![]() Karta nemovitosti |
|---|---|---|
| Typ zakázky: | prodej |
NOVÝ BYT 2+kk S OHROMNOU TERASOU - KAŠPERSKÉ HORY - ŠUMAVA. Lokalita: zcela nový, právě dokončovaný bytový dům o 24 bytech má dobrou adresu na Šumavě - v malebném horském středisku Kašperské Hory 758 m n.m. Nad ním završuje siluetu okolních hor nejvýše položený hrad v Čechách - středověký Kašperk založený Karlem IV. k ostraze zemské hranice a Zlaté stezky. Hrad Kašperk je dominantou města a spolu s nádhernou krajinou vytváří kouzlo spojení se starou Šumavou. Malebné náměstí s renovovanými historickými domy, kašnou, radnicí, která by mohla být kulisou do pohádky a gotickým kostelem sv. Markéty. V Kašperských Horách se alespoň na chvíli přenesete do doby Karla IV. Ve městě je perfektní občanská vybavenost (škola, školka, lékařský dům, kino, muzea, knihovna, obchody a restaurace s příjemným posezením). Na okraji města směrem k Amáliinu údolí je moderní SKIAREÁL, vybavený večerním osvětlením sjezdovek a lyžařskou školou s půjčovnou. V létě najdete v okolí mnoho krásných míst dostupných na elektrokolech nebo pěší turistikou.
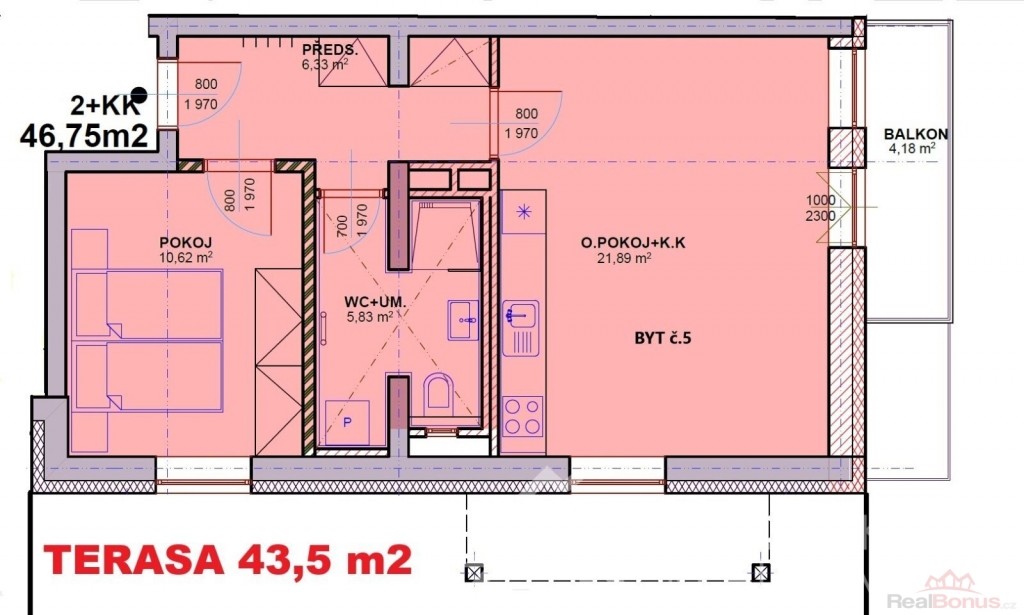
Popis bytu: velkou předností tohoto bytu je ohromná terasa o velikosti 43,5 m2 s překrásným výhledem do krajiny. Úžasná je i orientace jihozápadním směrem s velkým osluněním. Byt samotný je o velikosti 2+kk s podlahovou plochou 46,75 m2. Z chodby je vstup do ložnice orientované na západ. Koupelna je vybavena závěsným WC, sprchovým koutem, umývadlem, topným žebříkem a přípravou na pračku se sušičkou. Velký obývací pokoj má jeden balkon se vstupem dvoukřídlovým francouzským oknem s čistě jižní orientací. Další stejné dveře vedou na super velkou terasu s dlažbou. V pokoji je dále příprava na kuchyňskou linku. K bytu je samozřejmě sklepní koje, společná kolárna a na výběr buď venkovní stání, nebo krytá garáž v suterénu. V domě je výtah. Celý dům je dokonale zateplen, okna jsou s izolačními trojskly. Vytápění zajišťuje napojení na centrální rozvod z městské výtopny na štěpku, což je ekologické a levné topení.
Cena: info v RK
| Cena: |
na vyžádání v RK (info o ceně v RK)
|
|---|
| Dispozice bytu | 2+kk |
|---|---|
| Číslo podlaží v domě | 1 |
| Celková podlahová plocha | 47 m² |
| Druh objektu | cihlová |
| Stav objektu | novostavba |
| Energetická třída | B - Velmi úsporná |
| Vlastnictví | osobní |
| Plocha teras | 44 m² |
| Plocha sklepu | 2 m² |
| Vybavení | balkon |
| Umístění objektu | klidná část obce |
| Telekomunikace | Telefon |
| Odpad | Městská kanalizace |
| Počet míst k parkování | 1 |
| Užitná plocha | 47 m² |
| Komunikace | asfaltová |




