| Číslo zakázky: | 2112 | ![]() Karta nemovitosti |
|---|---|---|
| Typ zakázky: | prodej |
## Prodej rodinného domu 6+kk, 156 m, pozemek 127 m Hlubočepská, Praha Hlubočepy.
Nabízíme k prodeji **variabilní rodinný dům o užitné ploše 156 m**, situovaný v klidné části Praha 5 Hlubočepy. Nemovitost je ideální jak pro **vícegenerační bydlení**, tak jako **investiční příležitost**.
Celková cena: **15 490 000 Kč + provize RK**
### Dispozice a využití
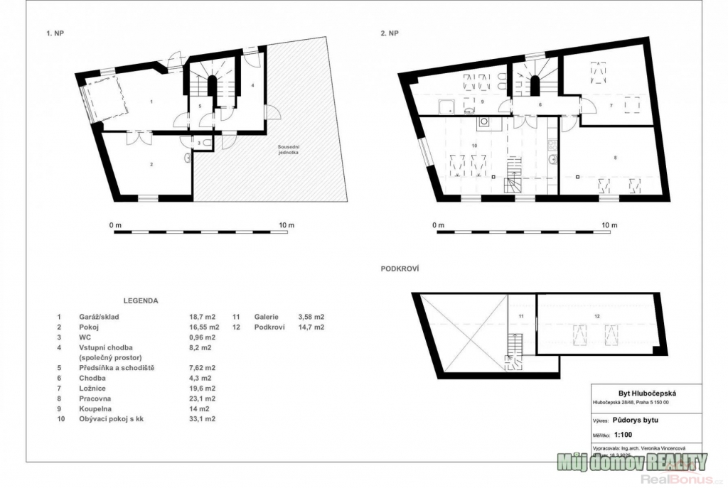
Dům se skládá ze **3 jednotek**, přičemž předmětem prodeje jsou **2 jednotky (cca 79 % domu)**, které lze využívat samostatně nebo jako jeden celek:
### Jednotka č. 1 byt 4+kk (cca 120 m)
Umístěna v 1. patře a podkroví:
* předsíň, schodiště, chodba
* obývací pokoj s kuchyňským koutem
* ložnice, pracovna
* koupelna s WC
* další ložnice v podkroví
### Jednotka č. 2 přízemí (36,21 m)
V KN vedena jako dílna/provozovna, aktuálně rekonstruována jako obytný prostor:
* zateplený prostor s vlastním vstupem z ulice nebo přes garážová vrata
* samostatná místnost s WC a umyvadlem (možný vlastní vstup z ulice)
Tato jednotka nabízí **výborný investiční potenciál** lze ji oddělit a pronajímat jako kancelář, obchod, provozovnu či sklad.
### Technické informace
* vytápění plynovým kotlem + krb
* radiátory
* veřejná kanalizace, vodovod, plyn
* elektřina 230 V
* dům po rekonstrukci, ve velmi dobrém stavu
* koupelna s vanou i sprchovým koutem
* vybavená kuchyňská linka a spotřebiče
* garáž + možnost parkování před domem
* bez SVJ
* bez právních vad
Energetická třída: **E nehospodárná**
### Lokalita and občanská vybavenost
Velkým benefitem je bezprostřední blízkost přírody pár minut chůze se nachází **Prokopské údolí**, Dalejský potok a Děvín, ideální pro procházky, sport i relax.
Zároveň máte v okolí kompletní občanskou vybavenost:
* mateřská i základní škola
* potraviny
* restaurace, pizzerie, kavárna
* wellness centrum
* další služby v docházkové vzdálenosti
### Dopravní dostupnost
* autobusová zastávka přímo u domu
* vlak cca 150 m
* tramvaj cca 1,5 km
* autem cca 5 minut na metro Smíchovské nádraží
Výborná dostupnost do centra města při zachování klidného rezidenčního charakteru lokality.
### Shrnutí
156 m užitné plochy
6+kk
možnost odděleného využití jednotek
garáž
investiční potenciál
blízkost přírody
kompletní občanská vybavenost
skvělá dopravní dostupnost
**Kontakt na sjednání prohlídky:**
Realitní kancelář: **Můj domov REALITY**
Makléř: **Lidiya Savynets**
Viber | WhatsApp | Telegram
*Těším se na Vaši zprávu nebo telefonát.*
| Cena: | (za nemovitost) 15 490 000,- Kč |
|---|
| Číslo podlaží v domě | 1 |
|---|---|
| Počet podlaží objektu | 2 |
| Celková podlahová plocha | 156 m² |
| Druh objektu | cihlová |
| Stav objektu | po rekonstrukci |
| Vlastnictví | osobní |
| Počet podlaží pod zemí | 1 |
| Vlastní pozemek | 127 m² |
| Umístění objektu | klidná část obce |
| Vybaveno | Částečně zařízeno |
| Topení | Ústřední - plynové |
| Zastavěná plocha | 99 m² |
| Plocha parcely | 127 m² |
| Užitná plocha | 156 m² |
| Plocha zahrady | 26 m² |
| Druh stavby | rodinný dům, rekreační chalupa, rekreační pozemek |
| Poloha objektu | samostatný |
