| Číslo zakázky: | 00104-3 | ![]() Karta nemovitosti |
|---|---|---|
| Typ zakázky: | prodej |
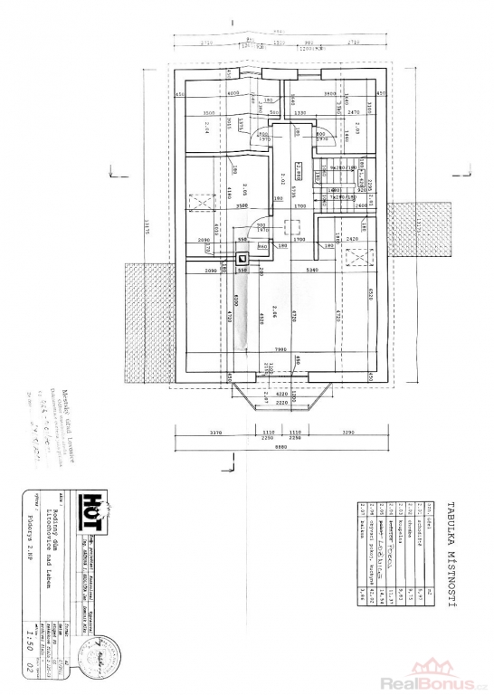
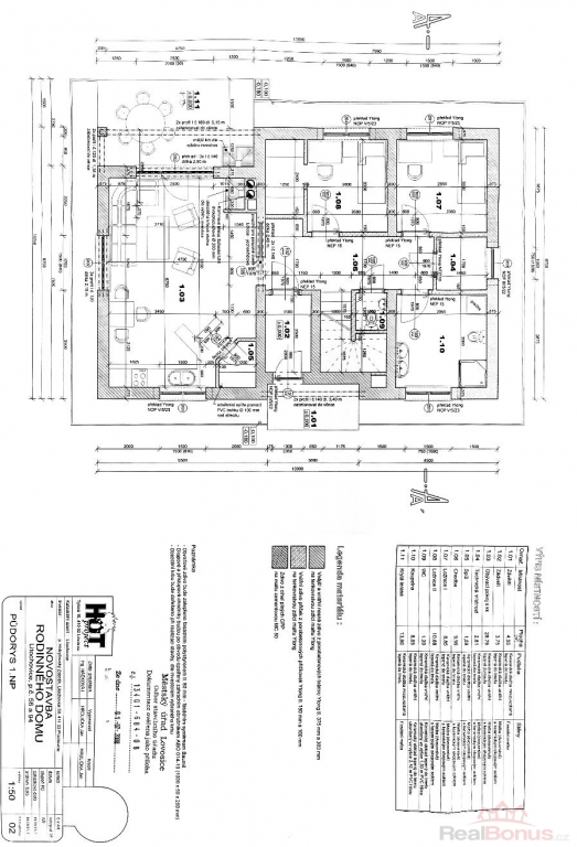
Nabízíme Vám ke koupi krásný rodinný dům zkolaudovaný v roce 2010 v klidné obci Litochovice nad Labem. Dům je postaven na pozemku o 1.684 m2 na kraji obce, pro rodinu, která hledá klid, je poloha domu perfektní. Nemovitost je v současnosti rozdělena na dva samostatně obyvatelné prostory, které jdou ale využívat současně. V přízemí je byt s terasou o ploše cca 100 m2 a má samostatný vchod z pozemku, podlahu tvoří převážně dlažba. Do vrchního, podkrovního bytu s balkonem se dá dostat také zvenku samostatným vchodem nebo využít propojení mezi byty skrze schody uvnitř interiéru, zde je kvalitní lino.
Dům je vytápěn elektrokotlem Protherm a ohřev vody je zajištěn 200 litrovým bojlerem zn. Dražice. V celém domě je podlahové vytápění a pro větší komfort nechali majitelé v podkroví nainstalovat také klimatizaci.
Obec Litochovice n. Labem zajišťuje napojení na obecní kanalizaci a vodovod. Na pozemku je navíc studna, kterou majitelé využívají na splachování wc a praní.
Přízemní byt je zateplen 10 cm vatou a podkrovní byt 15 cm.
Na pozemku je velmi prostorná garáž, která má plochu 32 m2. Dále je zde bazén a pergola pro letní posezení u grilu.
Věřím, že dům se velmi rychle najde nového majitele a poskytne tak příjemné a klidné zázemí této obce a zároveň nabídne rychlou dostupnost jak směrem do Ústí nad Labem a dále Německa, tak i na druhý směr k Praze.
| Cena: |
(za nemovitost) 9 750 000,- Kč
(včetně DPH, včetně poplatků, včetně provize, včetně právního servisu)
|
|---|
| Počet podlaží objektu | 2 |
|---|---|
| Druh objektu | cihlová |
| Stav objektu | velmi dobrý |
| Energetická třída | G - Mimořádně nehospodárná |
| Plocha balkonu | 4 m² |
| Plocha teras | 20 m² |
| Vybavení | balkon terasa zahrada |
| Umístění objektu | centrum |
| Topení | Lokální - tuhá paliva Ústřední - elektrické Jiné |
| Voda | dálkový vodovod |
| Odpad | Městská kanalizace |
| Stáří objektu | 16 |
| Rok kolaudace | 2 010 |
| Parkování | garáž |
| Zastavěná plocha | 116 m² |
| Plocha parcely | 1 679 m² |
| Ostatní | Bazén Garáž |
| Užitná plocha | 190 m² |
| Plocha zahrady | 1 563 m² |
| Inženýrské sítě | Vodovod Kanalizace |
| Charakter okolní zástavby | obytná |
| Poloha objektu | samostatný |




